
Makelaarsland Nederland B.V.
vasb#znxrynnefynaq.ay
(+31) 882 00 20 00
Wilt u weten of u deze woning kunt betalen?
Kan ik deze woning kopen?
Benieuwd naar de huidige hypotheekrentes?
Bekijk actuele hypotheek rente
Omschrijving
Aardbeivlinder 133 – ruim, comfortabel, sfeervol en helemaal klaar voor een nieuw gezin!
Op een heerlijke plek in Tiel Passewaaij, buurt 7, de jongste en zeer kindvriendelijke buurt van de wijk staat deze royale twee-onder-een-kapwoning. Met alle dagelijkse voorzieningen binnen handbereik (speeltuinen, meerdere basisscholen, een winkelcentrum en het NS-station) én de snelweg A15 op slechts 5 minuten rijden, woon je hier comfortabel én centraal.
Wandel je 10 minuten richting de dijk, dan ontvouwt zich een prachtig decor van de Waal, uiterwaarden en de weidse Betuwe. Perfect voor hardlopers, fietsers en natuurliefhebbers.
BEGANE GROND
Aan de achterzijde is de woning maar liefst 2,4 meter over de volle breedte uitgebouwd, waardoor een royale leefkeuken is ontstaan. Het grote kookeiland met natuurstenen blad vormt het hart van de ruimte. Hier vind je een inductiekookplaat met ingebouwd afzuigsysteem en een gezellige bar voor vier personen, perfect voor een snel ontbijt of een vrijdagmiddagborrel.
De keuken biedt volop kastruimte, een grote koelkast, aparte vriezer en twee ruime ovens.
Dankzij de dubbele openslaande deuren vloeit het woongedeelte moeiteloos over in de tuin, waardoor binnen en buiten één geheel worden.
Een praktisch pluspunt: via een binnendeur loop je direct door naar de schuur/garage, ideaal voor een tweede koelkast of het snel pakken van de fietsen.
De volledige begane grond is voorzien van vloerverwarming én een koelelement, wat zomers zorgt voor een aangenaam klimaat.
In de woonkamer brengt de stijlvolle dubbelzijdige gashaard direct sfeer en warmte, eenvoudig te bedienen met een afstandsbediening.
De strak met PVC afgewerkte trap en de nette, verlichte trapkast maken het geheel compleet.
EERSTE VERDIEPING
Hier liggen drie comfortabele slaapkamers, allemaal voorzien van vloerverwarming én een eigen thermostaat, heerlijk warm in de winter en altijd precies de gewenste temperatuur. De badkamer is een fijne plek om te ontspannen, met een ruime inloopdouche, een ligbad, een radiator en eveneens vloerverwarming.
De prachtige houten shutters, die je zowel op de begane grond als boven terugziet, geven de ruimtes een warme en sfeervolle uitstraling.
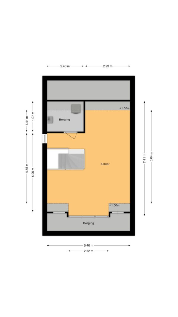
ZOLDER
De volledig afgewerkte zolder is een veelzijdige ruimte: ideaal als slaap-, werk-, game- of hobbykamer. De dakkapel met drie ramen zorgt voor extra licht, ruimte en een schitterend uitzicht op de boomgaard richting de dijk.
BUITEN
De zonnige achtertuin, gelegen op het westen, biedt de hele middag en avond zon. De tuin is aangelegd door een hovenier en heeft meerdere fijne zitplekken tussen rijk groen en beplanting die in verschillende seizoenen bloeit.
Op de oprit is ruimte voor twee auto’s.
De woning beschikt bovendien over 16 zonnepanelen, HR++-glas en energielabel A.
ALGEMEEN
*Gelegen in de jongste buurt van Passewaaij
*Dichtbij basisscholen, winkelcentrum en NS-station
*Kindvriendelijke wijk met speeltuinen, sportveld en hondenuitlaatplaats
*Slechts 1 minuut van de randweg en uitkijk op groene weilanden
*Uitbouw van 2,4 m over de volle breedte
*Zonnige achtertuin op het westen
*Luxe woonkeuken met bar, ingebouwd afzuigsysteem, 2 ovens en ruime koelkast
*Begane grond met vloerverwarming en koeling
*Praktische binnendeur naar schuur/garage
*Dubbelzijdige gashaard
*3 slaapkamers met vloerverwarming en eigen thermostaat
*Badkamer met douche en ligbad
*Afgewerkte zolder met dakkapel, ruimte voor 2 extra kamers
*Energielabel A, HR++ glas, houten kozijnen en 16 zonnepanelen
*Oprit voor 2 auto’s
*Bouwjaar 2017
*Woonoppervlak: 156 m² – Perceeloppervlak: 244 m²
Interesse?
Neem voor een vrijblijvende bezichtiging contact met ons via mail of telefonisch 088 – 200 2000 – wij maken graag tijd voor u!
Kenmerken
Overdracht
- Vraagprijs
- € 680.000,- k.k.
- Status
- beschikbaar
- Aanvaarding
- in overleg
Bouw
- Type
- Woonhuis
- Soort
- eengezinswoning
- Type woonhuis
- geschakelde 2-onder-1-kapwoning
- Bouwjaar
- 2017
- Onderhoud binnen
- goed
- Onderhoud buiten
- goed
Tuin
- Type
- achtertuin, voortuin
- Hoofd tuin
- achtertuin
- Ligging
- west
- Oppervlakte
- 84 m²
Woonhuis
- Kamers
- 5
- Slaapkamers
- 4
- Verdiepingen
- 3
- Woonopp.
- 156 m²
- Inhoud
- 628 m³
- Perceelopp.
- 244 m²
- Ligging
- aan rustige weg, in woonwijk
Energie
- Energie label
- A
- Isolatie
- volledig geïsoleerd
- Verwarming
- c.v.-ketel, gashaard, vloerverwarming gedeeltelijk
Garage
- Type
- aangebouwd steen
- Capaciteit
- 1 auto
Foto's
Neem contact met ons op
Bekijk de actuele rentetarieven en de maandlasten voor deze woning
Een hypotheekadviseur vinden?
Klik hier


































































