
Van Bruggen Utrecht
znxrynneqvw-hgerpug#inaoehttra.ay
030 - 877 1742
Wilt u weten of u deze woning kunt betalen?
Kan ik deze woning kopen?
Benieuwd naar de huidige hypotheekrentes?
Bekijk actuele hypotheek rente
Omschrijving
Lichte eindwoning met tuin en zolder in de populaire wijk Zuilen
Deze fijne jaren '30 eindwoning in de geliefde wijk Zuilen in Utrecht combineert ruimte, licht en een prettige woonomgeving. Dankzij de extra ramen aan de zijkant profiteer je hier van veel daglicht, wat zorgt voor een lichte en aangename sfeer in huis. Met een tuin, een praktische aanbouw en een zolder met vaste trap biedt deze woning volop mogelijkheden voor comfortabel wonen.
Omgeving
De woning ligt in een rustige straat in Zuilen, een wijk die bekendstaat om het vele groen, de brede straten en de ontspannen sfeer met bijna een dorps karakter. Tegelijk woon je hier op korte afstand van alles wat de stad te bieden heeft. In de directe omgeving vind je winkels, scholen, speeltuinen en sportvoorzieningen. Ook het Julianapark ligt vlakbij: een geliefde plek om te wandelen, sporten of ontspannen in het groen.
Het centrum van Utrecht is eenvoudig bereikbaar met de fiets en het openbaar vervoer. Daarnaast zijn de uitvalswegen A2, A12, A27 en A28 snel te bereiken.
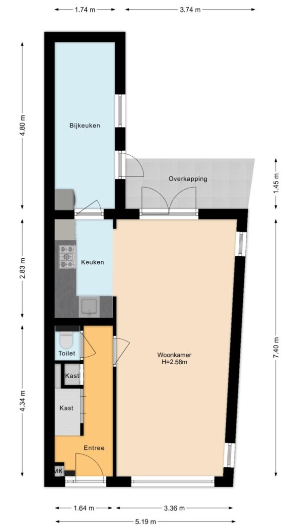
Indeling
Bij binnenkomst kom je in de hal met toegang tot het toilet, de woonkamer en de trap naar de eerste verdieping.
De woonkamer ligt aan de voorzijde van de woning en biedt een prettige leefruimte. Aan de achterzijde bevindt zich de eetkamer met openslaande deuren naar de tuin, waardoor binnen en buiten mooi met elkaar verbonden worden. De open keuken grenst aan naast de eetkamer en is uitgevoerd in een praktische L-opstelling met diverse inbouwapparatuur.
Via zowel de keuken als de tuin bereik je de aanbouw. Deze ruimte wordt momenteel gebruikt als schuur en wasruimte maar heeft volop mogelijkheden om naar vrije wens in te delen. Doordat de aanbouw zowel van binnenuit als van buitenaf toegankelijk is, is deze bijzonder praktisch. Ideaal voor het stallen van fietsen, het opbergen van tuinspullen of als extra bergruimte.
Eerste verdieping
Op de eerste verdieping vind je een ruime overloop en twee slaapkamers aan de voorzijde van de woning. Aan de achterzijde ligt de opvallend ruime badkamer, voorzien van een wastafel, een inloopdouche, het tweede toilet en een radiator.
Zolder
De zolderverdieping is met een vaste trap bereikbaar. Op de voorzolder is een aansluiting voor een wasmachine. Ook hangt hier de cv-ketel. De derde kamer die op deze verdieping gecreëerd is, is ideaal als extra slaapkamer, thuiswerkplek of hobbyruimte.
Buitenruimte
De woning beschikt over een fijne tuin op het noordoosten, waar je vrijwel de hele dag heerlijk kunt genieten van de zon. Dankzij de achterom via de zijkant is de tuin bovendien praktisch bereikbaar, bijvoorbeeld voor fietsen.
Kenmerken
-Woonoppervlakte: 98 m²
-Tuin op het noordoosten
-Energielabel C
Pluspunten van de woning
-Lichte eindwoning in de populaire wijk Zuilen
-Extra ramen aan de zijkant voor veel daglicht
-Praktische achterom via de zijkant
-Aanbouw met schuur- en wasruimte (van binnen en buiten bereikbaar)
-Twee slaapkamers en ruime badkamer op de eerste verdieping
-Zolder met vaste trap en derde slaapkamer met diverse mogelijkheden
-Tuin op het noordoosten
-Nabij Julianapark, winkels, scholen en sportvoorzieningen
-Goede bereikbaarheid van centrum Utrecht en uitvalswegen
De volgende clausules zullen in de koopakte worden opgenomen:
-Ouderdomsclausule
-Asbestclausule
Kenmerken
Overdracht
- Vraagprijs
- € 525.000,- k.k.
- Status
- beschikbaar
- Aanvaarding
- in overleg
Bouw
- Type
- Woonhuis
- Soort
- eengezinswoning
- Type woonhuis
- eindwoning
- Bouwjaar
- 1926
- Onderhoud binnen
- goed
- Onderhoud buiten
- goed
Tuin
- Type
- achtertuin
- Hoofd tuin
- achtertuin
- Ligging
- noord, oost
- Oppervlakte
- 17 m²
Woonhuis
- Kamers
- 4
- Slaapkamers
- 3
- Verdiepingen
- 3
- Woonopp.
- 98 m²
- Inhoud
- 338 m³
- Perceelopp.
- 71 m²
- Ligging
- aan rustige weg, in woonwijk
Energie
- Energie label
- C
- Isolatie
- HR-glas, vloerisolatie
- Verwarming
- c.v.-ketel
Garage
- Type
- geen garage
Berging
- Type
- aangebouwd steen
- Voorzieningen
- voorzien van elektra, voorzien van water
Foto's
Plattegronden
Kaart
Neem contact met ons op
Bekijk de actuele rentetarieven en de maandlasten voor deze woning
Een hypotheekadviseur vinden?
Klik hier





























































