
INZuid Real Estate
vasb#21mhvq.ay
0621212121
Wilt u weten of u deze woning kunt betalen?
Kan ik deze woning kopen?
Benieuwd naar de huidige hypotheekrentes?
Bekijk actuele hypotheek rente
Omschrijving
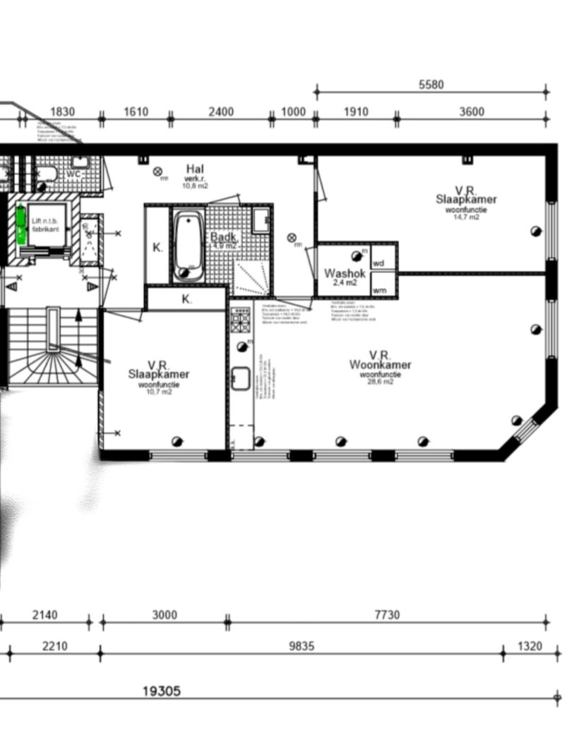
Luxe HOEKappartement (ca. 79 m²) aan het Amsterdamse Bos
Op een toplocatie aan de rand van het Amsterdamse Bos ligt dit prachtige, volledig gerenoveerde high-end hoekappartement van ca. 79 m² met twee slaapkamers, luxe afwerking en een bergingsruimte in het souterrain. Het appartement is tot in detail verzorgd en combineert comfort en stijl.
INDELING:
Via de verzorgde centrale entree met lift en trappenhuis bereikt u de woning op de eerste verdieping.
De lichte woonkamer met hoekligging biedt vrij uitzicht en beschikt over een maatwerk kastenwand en een strakke open keuken voorzien van hoogwaardige inbouwapparatuur zoals inductiekookplaat met afzuiging, combimagnetron, vaatwasser, koelkast en vriezer.
Aangrenzend bevindt zich de wasruimte met wasmachine en droger.
Aan de achterzijde ligt de ruime master bedroom met luxe inbouwkast en tv. De stijlvolle badkamer beschikt over een ligbad, inloopdouche en modern wastafelmeubel. De tweede slaapkamer aan de voorzijde beschikt eveneens over een grote inbouwkast en tv.
Het gehele appartement is voorzien van een pvc-visgraatvloer met hoge plinten, vloerverwarming, inbouw ledverlichting en hoge plafonds wat zorgt voor een gevoel van ruimte en luxe. Dankzij de goede isolatie, dubbele beglazing en mechanische ventilatie is het wooncomfort optimaal.
LOCATIE:
De woning ligt in een groene, rustige buurt met alle voorzieningen binnen handbereik.
Winkelcentrum Groot-Gelderlandplein, Stadionplein, de Zuidas, Vrije Universiteit, Amsterdam UMC (VUmc) en diverse scholen liggen op korte afstand.
Voor ontspanning zijn het Amsterdamse Bos, het Nieuwe Meer en diverse sportfaciliteiten op loopafstand. Daarnaast bevindt zich om de hoek het gezellige buurtcafé Anno 1890, een geliefde plek voor sport, ontmoeting en gezelligheid.
De bereikbaarheid is uitstekend, zowel met de auto (A10, afslag S108 en A9, afslag 5) als met het openbaar vervoer (sneltram, station Zuid/WTC en RAI).
BIJZONDERHEDEN:
-Woonoppervlakte: ca. 79 m²
-Volledig gerenoveerd en luxe afgewerkt
-Twee slaapkamers
-Luxe badkamer met ligbad en inloopdouche
-Luxe open keuken met inbouwapparatuur
-Vloerverwarming en Inbouw ledverlichting
-Hoge plafonds en maatwerk kasten
-Berging in souterrain
-Lift aanwezig
-Uitstekende locatie nabij Amsterdamse Bos en Zuidas
Luxury Corner Apartment (approx. 79 m²) by the Amsterdam Forest In a prime location on the edge of the Amsterdamse Bos.
This beautiful, fully renovated high-end corner apartment of approx. 79 m² offers two bedrooms, luxurious finishes, and a private storage room in the basement. Every detail has been carefully designed, combining comfort and style throughout.
LAYOUT
Through the well-maintained central entrance with lift and staircase, you reach the apartment on the first floor.
The bright corner living room enjoys an open view and features a custom-built wall unit and a sleek open kitchen equipped with high-quality built-in appliances such as an induction hob with integrated extractor, combination oven, dishwasher, refrigerator, and freezer.
Adjacent is the utility room with washing machine and dryer.
At the rear is the spacious master bedroom with a luxurious built-in wardrobe and TV. The stylish bathroom offers a bathtub, walk-in shower, and modern washbasin unit. The second bedroom at the front also features a large built-in wardrobe and TV.
The entire apartment is finished to perfection with a herringbone PVC floor with high skirting boards, underfloor heating, built-in LED lighting, and high ceilings, creating a spacious and refined atmosphere. Excellent insulation, double glazing, and mechanical ventilation ensure optimal living comfort.
LOCATION
The apartment is located in a green and peaceful neighbourhood with all amenities within easy reach.
Shopping centres Groot-Gelderlandplein and Stadionplein, the Zuidas business district, Vrije Universiteit, Amsterdam UMC (VUmc) and several schools are all nearby.
For relaxation, the Amsterdamse Bos, Nieuwe Meer, and various sports and wellness facilities are within walking distance. Around the corner, the popular neighbourhood café Anno 1890 is a favourite local spot for sports, socialising, and a cosy atmosphere.
The property is easily accessible by both car (A10 exit S108 and A9 exit 5) and public transport (tram, Zuid/WTC station, and RAI station).
DETAILS
- Living area: approx. 79 m²
- Fully renovated and luxuriously finished
- Two bedrooms
- Luxury bathroom with bathtub and walk-in shower
- Modern open kitchen with built-in appliances
- Underfloor heating and built-in LED lighting
- High ceilings and custom-made cabinetry
- Private storage room in the basement
- Lift access
- Excellent location near Amsterdam Forest and Zuidas
Kenmerken
Overdracht
- Huurprijs
- € 2.950,- p.m.
- Status
- beschikbaar
- Aanvaarding
- in overleg
Bouw
- Type
- Appartement
- Soort
- tussenverdieping
- Bouwjaar
- 1931-1944
- Onderhoud binnen
- uitstekend
- Onderhoud buiten
- uitstekend
Appartement
- Kamers
- 3
- Slaapkamers
- 2
- Verdiepingen
- 1
- Woonopp.
- 79 m²
- Inhoud
- 246 m³
- Ligging
- aan bosrand, in woonwijk, vrij uitzicht
Energie
- Energie label
- A+
- Verwarming
- c.v.-ketel
Garage
- Type
- geen garage
Berging
- Type
- box
- Voorzieningen
- voorzien van elektra
Foto's
Kaart
Neem contact met ons op
Bekijk de actuele rentetarieven en de maandlasten voor deze woning
Een hypotheekadviseur vinden?
Klik hier



















