
Klaverbladmakelaars
vasb#xynireoynqznxrynnef.ay
Wilt u weten of u deze woning kunt betalen?
Kan ik deze woning kopen?
Benieuwd naar de huidige hypotheekrentes?
Bekijk actuele hypotheek rente
Omschrijving
Sommige woningen hebben geen lange omschrijving nodig. Die moet je beleven, de sfeer voelen zodra je binnenstapt zeg je "yep dit is het".
Blauforleat 2b in Augustinusga is misschien wel zo'n woonboerderij op zo'n plek.
De woonboerderij heeft een rijke historie maar dat is niet meer te zien. Compleet gerenoveerd, geïsoleerd en gemoderniseerd en dus weer helemaal bij de tijd.
Wellicht door zijn grote dubbele garage ook geschikt voor ondernemers die werk aan huis hebben. Of gewoon omdat je je caravan, boot of camper bij huis wilt hebben.
Blauforleat is een hechte buurtgemeenschap en valt onder het dorp Augustinusga en ligt aan het Prinses Margrietkanaal, tussen de grotere dorpen Surhuisterveen en Buitenpost, met alle benodigde voorzieningen. Ook Groningen en Leeuwarden liggen gunstig: beide op ongeveer 30 minuten rijden.
Waarom is deze woonboerderij zo speciaal, nou hierom onder anderen:
* Ochtend zonnetje voor op het terras aan het water
* Ondergaande zon achter in de tuin
* Warmtepomp
* Airconditioning
* Vloerverwarming
* Volledige renovatie en isolatie (2022/2023)
* HR++ glas op de begane grond
* Energielabel A+++
* Ca. 235 woonoppervlakte op begane grond
* Water- en elektra-aansluitingen volledig vernieuwd (2023/2024)
* Gasloos
* Open vaarwater voor de deur langs
Benieuwd en nieuwsgierig geworden? Bel of mail dan voor een uitgebreide bezichtiging afspraak.
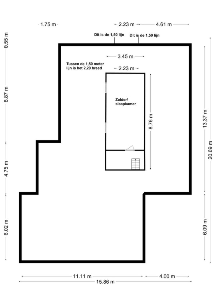
De indeling van de woning is een beleving op zich.
Deze voormalige boerderij (begin 18e eeuw) en oude herberg/kroeg (va eind 19de eeuw tot begin 21ste eeuw) draagt een rijke geschiedenis met zich mee. Als muren oren en een mond zouden hebben zouden ze veel te vertellen hebben.
In 2022/23 is alles getransformeerde naar een luxe woonboerderij die volledig op de toekomst en luxe is ingericht.
Op de plattegronden is prima te herkennen waar de ruimtes zijn, maar wilt deze woonboerderij beleven en voelen en ervaren, dus maak een afspraak en we gaan een uitgebreide rondleiding geven. Meek it possible.
Kenmerken
Overdracht
- Vraagprijs
- € 845.000,- k.k.
- Status
- beschikbaar
- Aanvaarding
- in overleg
Bouw
- Type
- Woonhuis
- Soort
- woonboerderij
- Type woonhuis
- vrijstaande woning
- Bouwjaar
- 1840
- Onderhoud binnen
- goed, uitstekend
- Onderhoud buiten
- uitstekend
Tuin
- Type
- achtertuin, voortuin, zijtuin, zonneterras
- Hoofd tuin
- achtertuin
- Ligging
- noord, west
- Oppervlakte
- 272 m²
Woonhuis
- Kamers
- 6
- Slaapkamers
- 5
- Verdiepingen
- 3
- Woonopp.
- 235 m²
- Inhoud
- 900 m³
- Perceelopp.
- 920 m²
- Ligging
- aan rustige weg, aan vaarwater, aan water, buiten bebouwde kom, landelijk gelegen, open ligging, vrij uitzicht
Energie
- Energie label
- A+++
- Isolatie
- HR-glas, dakisolatie, muurisolatie, vloerisolatie, volledig geïsoleerd
- Verwarming
- elektrische verwarming, vloerverwarming gedeeltelijk, warmte terugwininstallatie, warmtepomp
Garage
- Type
- garagebox
- Capaciteit
- 4 autos
Foto's
Kaart
Neem contact met ons op
Bekijk de actuele rentetarieven en de maandlasten voor deze woning
Een hypotheekadviseur vinden?
Klik hier


































