
Tulp Makelaars Ede - Barneveld
mrxre#ghycznxrynnef.ay
06-82065417
Wilt u weten of u deze woning kunt betalen?
Kan ik deze woning kopen?
Benieuwd naar de huidige hypotheekrentes?
Bekijk actuele hypotheek rente
Omschrijving
Sfeervolle maisonnette aan de rand van Ede Centrum - comfortabel, licht en ideaal voor starters
Op een fijne en rustige locatie, direct grenzend aan het levendige centrum van Ede, ligt deze leuke en nette maisonnette woning in een kleinschalig complex. De woning is uitstekend onderhouden en beschikt over twee slaapkamers, twee dakkapellen en een knus terras op het noorden.
Met gratis parkeren in de straat en alle voorzieningen op loopafstand is dit een ideale starterswoning.
Buurt & Locatie
De ligging is werkelijk perfect: op slechts vijf minuten lopen vind je zowel het bruisende centrum van Ede als het prachtige Edese bos.
Een unieke combinatie van stads gemak en natuurlijk groen. In de directe omgeving liggen meerdere supermarkten voor de dagelijkse boodschappen, terwijl het charmante centrum van Ede een divers aanbod biedt aan winkels, speciaalzaken en gezellige restaurants.
Twee keer per week kun je terecht op de markt op het nabijgelegen plein.
Ook natuurliefhebbers zitten hier uitstekend: de Ginkelse Heide, verschillende bosgebieden én het treinstation zijn allemaal op loopafstand. Hoe centraal wil je wonen?
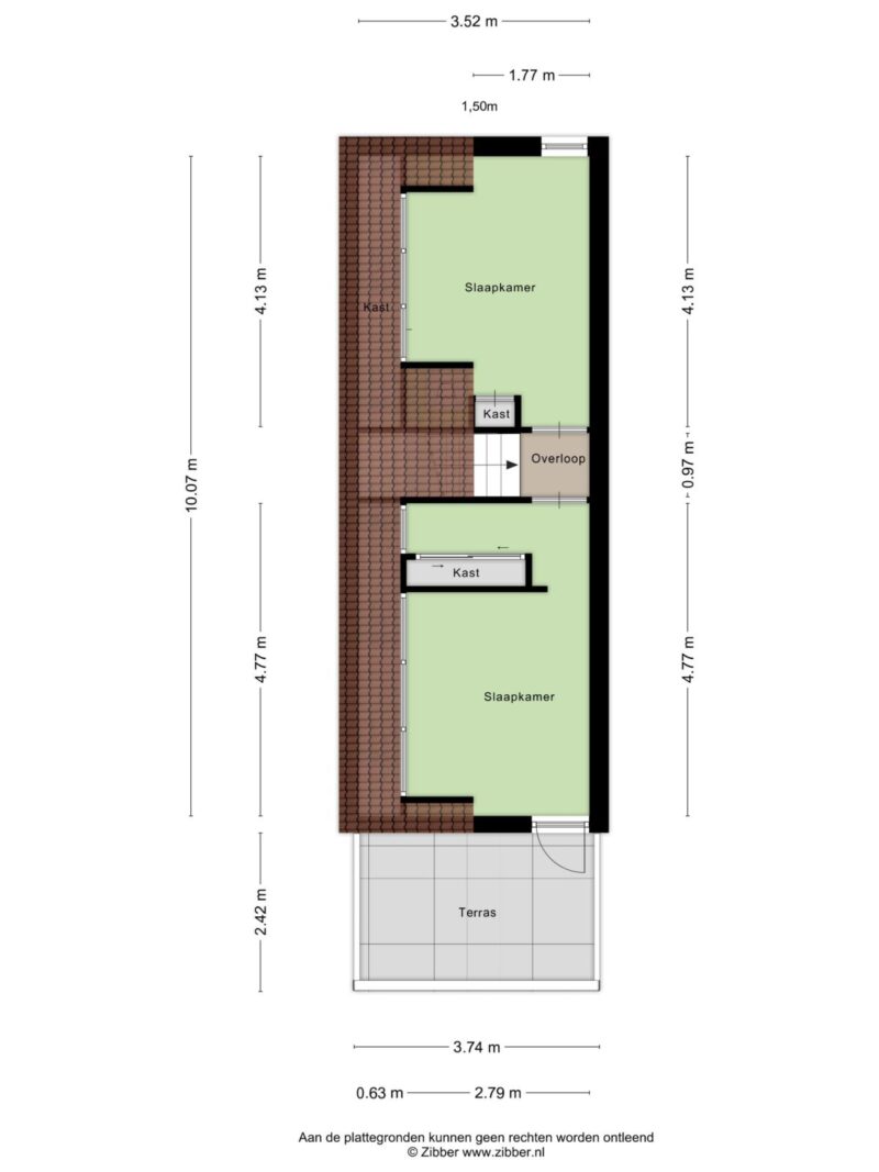
Indeling
Begane grond:
Via de voordeur betreed je de woning. De gehele begane grond is voorzien van een warme houtkleurige vloer die de woning een sfeervolle uitstraling geeft.
De lichte woonkamer, voorzien van meerdere ramen, voelt ruim en gezellig aan.
De open keuken is praktisch ingericht en uitgerust met inbouwapparatuur.
De ruime badkamer beschikt over een ligbad en een dubbele wastafel.
Eerste verdieping:
Deze verdieping is bereikbaar via de trap in de woonkamer en is volledig voorzien van vloerbedekking.
De vele ramen en de dakkapellen zorgen voor een prachtige lichtinval.
Dankzij de aanwezige kasten is er voldoende opbergruimte.
Via de masterbedroom bereik je het terras op het noorden, een heerlijke plek om even tot rust te komen.
Pluspunten op een rij
-rustige én centrale ligging, op vijf minuten lopen van centrum en bos;
-gratis parkeren in de straat (buiten vergunninghouder gebied);
-energielabel B;
-kleinschalig en verzorgd complex;
-ideale woning een groene, gezellige omgeving.
Deze maisonnette combineert comfort, licht en een fantastische ligging. Absoluut een bezichtiging waard!
DISCLAIMER:
* Deze informatie is door ons met de nodige zorgvuldigheid samengesteld. Onzerzijds wordt echter geen enkele aansprakelijkheid aanvaard voor enige onvolledigheid, onjuistheid of anderszins, dan wel de gevolgen daarvan. Alle opgegeven maten en oppervlakten zijn indicatief.
Kenmerken
Overdracht
- Vraagprijs
- € 285.000,- k.k.
- Status
- beschikbaar
- Aanvaarding
- in overleg
Bouw
- Type
- Appartement
- Soort
- maisonnette
- Bouwjaar
- 2005
- Onderhoud binnen
- goed
- Onderhoud buiten
- goed
Appartement
- Kamers
- 3
- Slaapkamers
- 2
- Verdiepingen
- 2
- Woonopp.
- 76 m²
- Inhoud
- 254 m³
- Perceelopp.
- 640 m²
- Ligging
- aan rustige weg, in centrum, vrij uitzicht
Energie
- Energie label
- B
- Isolatie
- dakisolatie, dubbel glas, muurisolatie, vloerisolatie, volledig geïsoleerd
- Verwarming
- c.v.-ketel, gashaard
Garage
- Type
- geen garage
Berging
- Type
- vrijstaand hout
Foto's
Kaart
Neem contact met ons op
Bekijk de actuele rentetarieven en de maandlasten voor deze woning
Een hypotheekadviseur vinden?
Klik hier





























