
Faasse & Fermont makelaars te Goes
vasb#snnffr-srezbag.ay
0113-250555
Wilt u weten of u deze woning kunt betalen?
Kan ik deze woning kopen?
Benieuwd naar de huidige hypotheekrentes?
Bekijk actuele hypotheek rente
Omschrijving
Deze ruime hoekwoning met vier slaapkamers en een garage is een buitenkans voor starters én doorstromers. Het huis staat op een mooi hoekperceel en heeft een speelse indeling met een centraal gelegen keuken en een fijne tuin. Ben je op zoek naar een woning met garage waar je niet veel aan hoeft te doen? Plan dan snel een bezichtiging!
De woning is grotendeels voorzien van rolluiken. Op de begane grond ligt een eigentijdse pvc-vloer met vloerverwarming. Het huis beschikt volledig over dubbel glas en zowel het dak als de muren zijn geïsoleerd. Dit resulteert in energielabel C.
De Goese Polder is een groene en kindvriendelijke wijk met diverse speelvelden en plantsoenen, waardoor het een geliefde woonomgeving is voor gezinnen. Op korte afstand vind je een winkelcentrum met onder meer een supermarkt, bakker en drogist. Het gezellige centrum van Goes ligt op circa vijf minuten fietsen.
Indeling
Begane grond
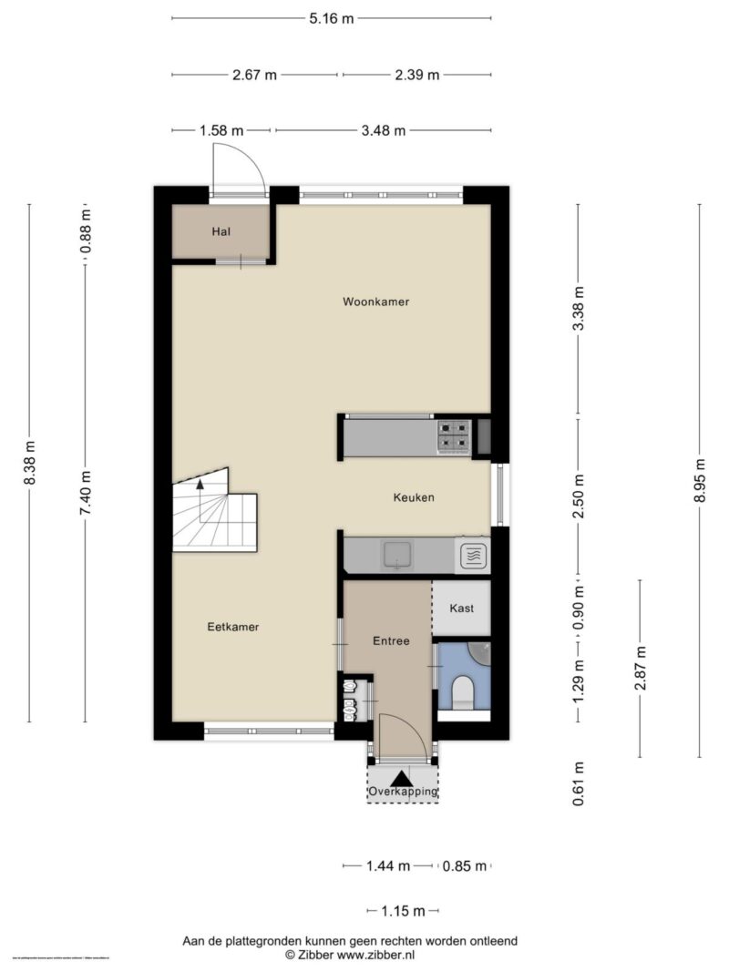
Entree met hal, meterkast, toilet en toegang tot de woonkamer. Doordat de keuken centraal is gesitueerd, ontstaat er een lichte tuingerichte woonkamer aan de achterzijde en een gezellige eetkamer aan de voorzijde. De keuken heeft een praktische indeling met veel kast- en werkruimte en is voorzien van een gaskookplaat, afzuigkap, combimagnetron, vaatwasser en koelkast. Dankzij het zijraam is er extra lichtinval. Via een portaal in de woonkamer is de achtertuin bereikbaar.
Eerste verdieping
Overloop met toegang tot drie slaapkamers en de badkamer. De badkamer is uitgerust met een douche, ligbad, toilet en wastafelmeubel.
Afmetingen slaapkamers:
_ Slaapkamer 1: ca. 5,16 m x 2,68 m
_ Slaapkamer 2: ca. 2,55 m x 3,40 m
_ Slaapkamer 3: ca. 2,50 m x 3,35 m
Tweede verdieping
Via een vaste trap bereik je de tweede verdieping. Hier bevindt zich een royale vierde slaapkamer met vaste kast, waarin de cv-opstelling en wasmachineaansluiting zijn ondergebracht.
Tuin
De achtertuin is georiënteerd op het oosten. Doordat er aan de zuidzijde geen bebouwing staat, kun je hier het grootste deel van de dag van de zon genieten. De tuin is volledig bestraat en omsloten door schuttingen.
Achterin de tuin staat de garage, voorzien van een elektrische deur.
Oplevering: in onderling overleg.
Vraagprijs: € 315.000,- k.k.
Kenmerken
Overdracht
- Vraagprijs
- € 315.000,- k.k.
- Status
- Verkocht onder voorbehoud
- Aanvaarding
- in overleg
Bouw
- Type
- Woonhuis
- Soort
- eengezinswoning
- Type woonhuis
- hoekwoning
- Bouwjaar
- 1979
- Onderhoud binnen
- redelijk
- Onderhoud buiten
- redelijk
Tuin
- Type
- achtertuin
- Hoofd tuin
- achtertuin
- Ligging
- oost, zuid
- Oppervlakte
- 45 m²
Woonhuis
- Kamers
- 5
- Slaapkamers
- 4
- Verdiepingen
- 3
- Woonopp.
- 108 m²
- Inhoud
- 382 m³
- Perceelopp.
- 136 m²
- Ligging
- aan rustige weg, beschutte ligging, in woonwijk
Energie
- Energie label
- C
- Isolatie
- dakisolatie, dubbel glas, muurisolatie
- Verwarming
- c.v.-ketel, vloerverwarming gedeeltelijk
Garage
- Type
- vrijstaand steen
- Capaciteit
- 1 auto
Foto's
Plattegronden
Video
Kaart
Neem contact met ons op
Bekijk de actuele rentetarieven en de maandlasten voor deze woning
Een hypotheekadviseur vinden?
Klik hier











































