
ten Hag makelaars Deventer B.V.
qriragre#graunt.ay
0570-666999
Wilt u weten of u deze woning kunt betalen?
Kan ik deze woning kopen?
Benieuwd naar de huidige hypotheekrentes?
Bekijk actuele hypotheek rente
Omschrijving
Nette twee-onder-een-kapwoning met een aangebouwde stenen garage. Gelegen aan de rand van de wijk, zonder bebouwing vóór de woning, wat zorgt voor een groen uitzicht.
De woning is gebouwd in 2012, maar uitgevoerd in klassieke jaren '30 stijl met een rieten dak dat de woning een sfeervolle en unieke uitstraling geeft. Ook is de woning 1,2 meter aan de achterzijde uitgebouwd. Daarnaast is er op de tweede verdieping een vierde slaapkamer gerealiseerd, voorzien van een en-suite badkamer.
De wijk Platvoet ligt aan de rand van Deventer en staat bekend om zijn rustige, kindvriendelijke karakter, met enkel bestemmingsverkeer. Je loopt zo het buitengebied van Deventer in en bereikt de IJssel met de prachtige uiterwaarden. Daarnaast zijn winkels, sportfaciliteiten en scholen in de nabije omgeving te vinden.
Een ideale combinatie van het rustige buitenleven en de gemakken van stadse voorzieningen dichtbij.
HIGHLIGHTS:
-Uitgebouwde woonkamer met openslaande deuren naar de tuin
-Strakke, moderne keuken met kookeiland aan de voorzijde
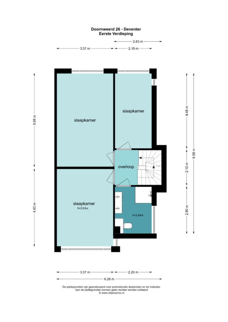
-3 ruime slaapkamers op de 1e verdieping
-4e slaapkamer met en-suite badkamer op de tweede verdieping
-Stenen garage voorzien van elektra en elektrische overheaddeur
Van dit huis is een eigen internetpagina beschikbaar. Als u de brochure downloadt komt u automatisch op deze pagina. Hier vindt u alle informatie van dit huis.
Interesse in dit huis? Schakel direct uw eigen NVM aankoopmakelaar in.
Uw NVM aankoopmakelaar komt op voor uw belang en bespaart u tijd, geld en zorgen. Adressen van collega NVM kantoren vindt u op Funda.nl.
Aan deze objectinformatie kunnen geen rechten worden ontleend en deze informatie kan niet als aanbieding of offerte worden beschouwd. Indien u een aanbieding wenst, kan de makelaar deze, na goedkeuring door de opdrachtgever, op basis van specifieke gegevens verzorgen.
Kenmerken
Overdracht
- Vraagprijs
- € 815.000,- k.k.
- Status
- beschikbaar
- Aanvaarding
- in overleg
Bouw
- Type
- Woonhuis
- Soort
- eengezinswoning
- Type woonhuis
- 2-onder-1-kapwoning
- Bouwjaar
- 2012
- Onderhoud binnen
- goed
- Onderhoud buiten
- goed
Tuin
- Type
- achtertuin, voortuin, zijtuin
- Hoofd tuin
- achtertuin
- Ligging
- oost
- Oppervlakte
- 99 m²
Woonhuis
- Kamers
- 5
- Slaapkamers
- 4
- Verdiepingen
- 3
- Woonopp.
- 159 m²
- Inhoud
- 630 m³
- Perceelopp.
- 285 m²
- Ligging
- in woonwijk, vrij uitzicht
Energie
- Energie label
- A
- Isolatie
- volledig geïsoleerd
- Verwarming
- c.v.-ketel
Garage
- Type
- aangebouwd steen
- Capaciteit
- 1 auto
Foto's
Kaart
Neem contact met ons op
Bekijk de actuele rentetarieven en de maandlasten voor deze woning
Een hypotheekadviseur vinden?
Klik hier















































