
Faasse & Fermont makelaars te Goes
vasb#snnffr-srezbag.ay
0113-250555
Wilt u weten of u deze woning kunt betalen?
Kan ik deze woning kopen?
Benieuwd naar de huidige hypotheekrentes?
Bekijk actuele hypotheek rente
Omschrijving
Deze karakteristieke woning ademt sfeer en biedt verrassend veel ruimte. De woonkamer heeft een oppervlakte van circa 60 m² en is ingedeeld met een zitkamer, eetkamer en een tv-/studeerkamer. Op de verdieping bevinden zich drie slaapkamers. De badkamer is gelegen op de begane grond, en er is tevens de mogelijkheid om hier een slaapkamer te realiseren. Achter de woning ligt een sfeervolle tuin met veel privacy.
Het geheel is gelegen op een markante plek aan het fraaie dorpsplein van Nisse.
Het oorspronkelijke woonhuis dateert van omstreeks 1700, met een aanbouw aan de achterzijde uit 1988. In 1995 is het dak gerenoveerd en voorzien van isolatie. Door de jaren heen is de woning goed onderhouden en op diverse punten gemoderniseerd. Het buitenschilderwerk is in 2024 volledig uitgevoerd. Verder beschikt de woning over zes zonnepanelen en is deze grotendeels geïsoleerd. Het energielabel is C.
Aan de voorzijde heeft u uitzicht op het karakteristieke dorpsplein met oude bomen, de 14e-eeuwse kerk, de historische vaete (vijver) en de muziektent.
Nisse wordt gezien als een van de mooiste dorpen van Zuid-Beveland. Het dorp kent een beschermd dorpsgezicht en wordt gedomineerd door de markante kerktoren, die in de wijde omgeving zichtbaar is. De omgeving bestaat uit een gevarieerd weidelandschap met meidoornheggen en welen, geliefd bij wandelaars en fietsers. De basisschool en kinderopvang in Nisse staan goed bekend. Daarnaast kent het dorp een actief verenigingsleven en een gezellig dorpshuis. Heinkenszand ligt op circa 4 kilometer afstand en Goes op ongeveer 6 kilometer.
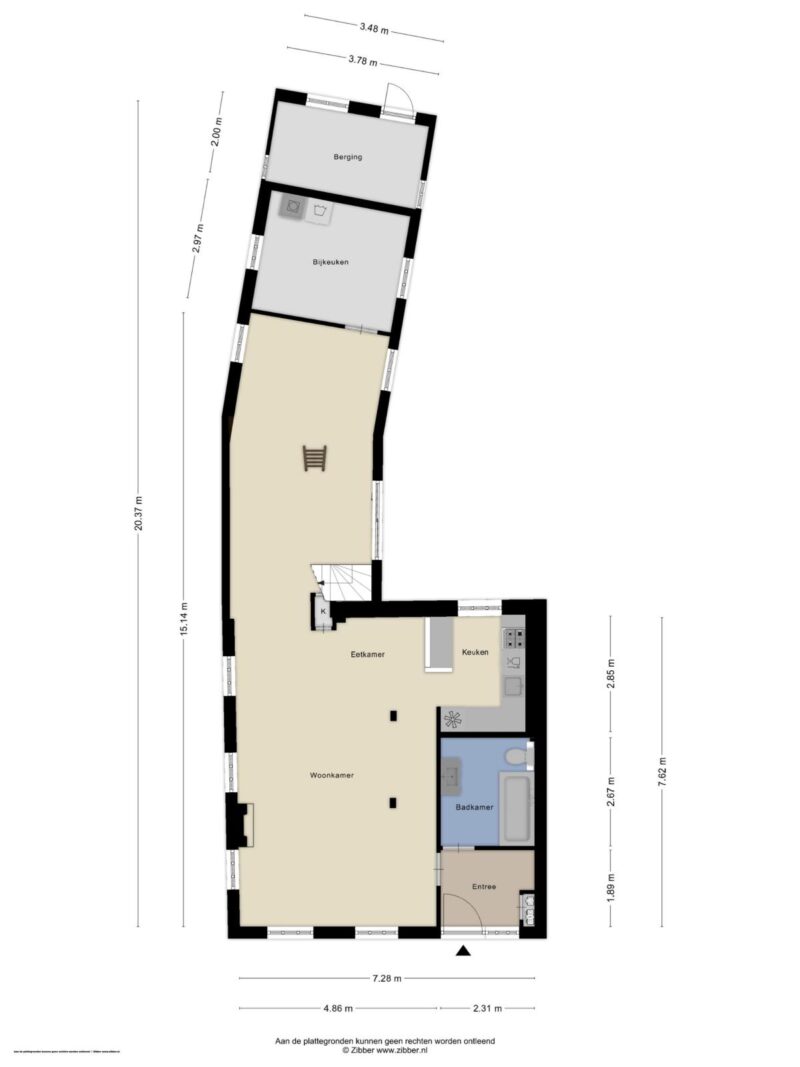
Indeling
Begane grond
Achter de fraaie voordeur bevindt zich de hal met meterkast en toegang tot de badkamer en woonkamer. De badkamer is voorzien van een wastafelmeubel met kolomkast, ligbad en toilet.
De woonkamer aan de voorzijde staat in open verbinding met de keuken en biedt ruimte aan een royale zithoek en eethoek. De balkenplafonds en plavuizenvloer zorgen voor een authentieke, gezellige uitstraling. Vanuit de keuken heeft u zicht op de achtertuin. De keuken is eenvoudig maar functioneel en uitgerust met een gaskookplaat, oven, afzuigkap, koelkast, vriezer en vaatwasser.
Het verrassende element van deze woning is de grote uitbouw aan de achterzijde, die zorgt voor een forse uitbreiding van het woongedeelte. Hier is een tweede woonkamer gerealiseerd _ een heerlijke ruimte met een schuifpui naar de tuin en een aangename sfeer door het hoge plafond.
Vanuit deze kamer is de praktische berging/bijkeuken bereikbaar, met daarboven een bergzolder.
Verdieping
Op de verdieping bevindt zich een royale overloop met vide. Vanuit de overloop zijn drie slaapkamers bereikbaar, elk met een oppervlakte van circa 12 m².
Tuin
De achtertuin biedt veel privacy en is onderhoudsvriendelijk aangelegd, grotendeels bestraat en voorzien van een vrije achterom. Achter de woning bevindt zich een berging voor fietsen en tuingereedschap.
Deze sfeervolle woning laat zich moeilijk vangen in foto's en woorden _ u moet het ervaren.
Maak daarom snel een afspraak voor een bezichtiging!
Vraagprijs: € 400.000,_ k.k.
Oplevering: in overleg
Kenmerken
Overdracht
- Vraagprijs
- € 400.000,- k.k.
- Status
- beschikbaar
- Aanvaarding
- in overleg
Bouw
- Type
- Woonhuis
- Soort
- eengezinswoning
- Type woonhuis
- hoekwoning
- Bouwjaar
- 1725
- Onderhoud binnen
- goed
- Onderhoud buiten
- goed
Tuin
- Type
- achtertuin
- Hoofd tuin
- achtertuin
- Ligging
- oost
- Oppervlakte
- 45 m²
Woonhuis
- Kamers
- 4
- Slaapkamers
- 3
- Verdiepingen
- 3
- Woonopp.
- 135 m²
- Inhoud
- 536 m³
- Perceelopp.
- 165 m²
- Ligging
- aan rustige weg, beschutte ligging, in centrum, vrij uitzicht
Energie
- Energie label
- C
- Isolatie
- dakisolatie, dubbel glas, muurisolatie
- Verwarming
- c.v.-ketel, vloerverwarming gedeeltelijk
Garage
- Type
- geen garage
Berging
- Type
- aangebouwd hout
- Voorzieningen
- voorzien van elektra
Foto's
Plattegronden
Video
Kaart
Neem contact met ons op
Bekijk de actuele rentetarieven en de maandlasten voor deze woning
Een hypotheekadviseur vinden?
Klik hier

































