
Van Bruggen Amsterdam-Oost
020 - 723 0502
Wilt u weten of u deze woning kunt betalen?
Kan ik deze woning kopen?
Benieuwd naar de huidige hypotheekrentes?
Bekijk actuele hypotheek rente
Omschrijving
Comfortabel wonen in Randwijck! Deze ruime dubbele bovenwoning biedt veel licht, twee badkamers en een fijn balkon op het oosten.
Ruime dubbele bovenwoning met balkon in geliefde wijk Randwijck _ Eikenrodelaan 100 BV, Amstelveen
In de populaire en groene wijk Randwijck ligt deze dubbele bovenwoning met een woonoppervlakte van 113 m² en een balkon van 6 m² op het oosten. De woning is verdeeld over drie verdiepingen en biedt volop ruimte en mogelijkheden voor verschillende woonwensen.
Indeling
Eerste etage:
Via de eigen entree kom je in de ruime woonkeuken met toegang tot het balkon, waar je 's ochtends heerlijk van de zon kunt genieten. Aan de voorzijde ligt de lichte woonkamer, een deel van deze woonkamer kan ook worden gebruikt als extra slaapkamer. Verder is er een badkamer met toilet en douche.
Tweede etage:
Hier bevindt zich een tweede woonkamer met keuken, een slaapkamer aan de achterzijde voorzien van airconditioning, en een tweede badkamer met toilet, douche en ligbad.
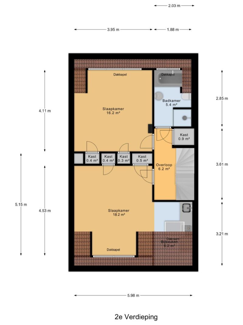
Derde etage:
Op de bovenste verdieping is nog een extra slaapkamer met aansluiting voor de wasmachine _ ideaal als logeer-, werk- of hobbykamer.
Omgeving:
De woning ligt in Randwijck, een rustige en geliefde buurt met veel groen. In de directe omgeving vind je winkels, scholen, openbaar vervoer en diverse uitvalswegen richting Amsterdam, Schiphol en de snelwegen A9 en A10. Het Stadshart Amstelveen ligt op korte afstand en biedt volop winkels, restaurants, (internationale) scholen en cultuur.
Bijzonderheden:
-Dubbele bovenwoning woonoppervlakte 113 m²
-Balkon (6 m²) op het oosten
-Twee keukens en twee badkamers
-Airco in de slaapkamer op de tweede etage
-Drie slaapkamers
-Populaire en groene wijk Randwijck
Een ruime woning met veel mogelijkheden op een fijne locatie in Amstelveen!
Kenmerken
Overdracht
- Vraagprijs
- € 575.000,- k.k.
- Status
- beschikbaar
- Aanvaarding
- in overleg
Bouw
- Type
- Appartement
- Soort
- bovenwoning
- Bouwjaar
- 1951
- Onderhoud binnen
- goed
- Onderhoud buiten
- goed
Appartement
- Kamers
- 5
- Slaapkamers
- 3
- Verdiepingen
- 3
- Woonopp.
- 113 m²
- Inhoud
- 410 m³
- Ligging
- aan rustige weg, in woonwijk
Energie
- Energie label
- E
- Isolatie
- HR-glas, dakisolatie
- Verwarming
- c.v.-ketel
Garage
- Type
- geen garage
Foto's
Plattegronden
Kaart
Neem contact met ons op
Bekijk de actuele rentetarieven en de maandlasten voor deze woning
Een hypotheekadviseur vinden?
Klik hier





















