
Makelaarsland Nederland B.V.
vasb#znxrynnefynaq.ay
(+31) 882 00 20 60
Wilt u weten of u deze woning kunt betalen?
Kan ik deze woning kopen?
Benieuwd naar de huidige hypotheekrentes?
Bekijk actuele hypotheek rente
Omschrijving
(ENGLISH RESUME BELOW)
Omschrijving
Gelegen in een rustige, kindvriendelijke doodlopende straat in een groene en zeer gewilde omgeving van Den Haag, biedt deze ruime en goed onderhouden gezinswoning een ideale combinatie van comfort, ruimte en bereikbaarheid. De woning beschikt over een lichte open leefruimte, vier volwaardige slaapkamers en een fraai aangelegde, recent gerenoveerde tuin met een stijlvolle veranda. Dankzij de uitstekende bereikbaarheid, nabijheid van scholen en de korte afstand tot zowel het stadscentrum als het strand is dit een woning die perfect aansluit bij het moderne gezinsleven.
De begane grond is praktisch en uitnodigend ingericht, met een ruime woonkamer die naadloos overloopt in de open keuken. Dit vormt een centraal leefgedeelte voor zowel dagelijks gebruik als het ontvangen van gasten.
Aan de achterzijde bevindt zich de in 2025 vernieuwde tuin met een hoogwaardige veranda (serre-uitbouw), die zorgt voor een vloeiende overgang tussen binnen en buiten. Deze ruimte is ideaal om het hele jaar door te gebruiken.
Op de verdiepingen bevinden zich vier goed bemeten slaapkamers, wat flexibiliteit biedt voor gezinnen, thuiswerken of logees. Twee badkamers en een aparte wasruimte zorgen voor extra comfort in het dagelijks gebruik.
Ligging & Omgeving
De woning ligt op een uitstekende locatie. Het centrum van Den Haag is binnen circa 10 minuten fietsen bereikbaar, terwijl het strand van Scheveningen op ongeveer 20 minuten ligt.
Voor ontspanning in het groen ligt het Haagse Bos op korte afstand.
Een groot pluspunt is de nabijheid van Theresiastraat (ca. 5 minuten fietsen), een levendige straat met diverse cafés, restaurants en winkels.
Internationale scholen zoals The British School in The Netherlands en HSV International Primary School zijn eenvoudig bereikbaar.
Voor dagelijkse boodschappen is er een winkelcentrum in de buurt met onder andere Albert Heijn, Hoogvliet, Action en Kruidvat.
De bereikbaarheid is uitstekend, met directe aansluiting op de A12, N14, A4 en A44.
Indeling
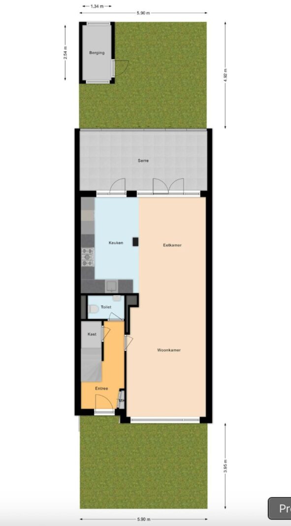
De begane grond beschikt over een entree met hal, trapopgang en separaat toilet. Vanuit de hal bereikt u de ruime woonkamer aan de voorzijde, die overgaat in de open keuken aan de achterzijde. De keuken geeft direct toegang tot de veranda en de tuin met aparte berging.
Op de eerste verdieping bevinden zich twee slaapkamers, een badkamer en een aparte wasruimte.
De tweede verdieping biedt nog eens twee slaapkamers en een tweede badkamer. Eén van de kamers geeft toegang tot het zonnige dakterras.
Duurzaamheid & Comfort
De woning is goed geïsoleerd (vloer, dak en dubbel glas) en voorzien van een HR CV-ketel uit 2021. De 10 zonnepanelen (ca. 4 kWh) dragen bij aan lagere energiekosten en een energielabel B.
Daarnaast is er een 3-fase aansluiting aanwezig, geschikt voor het plaatsen van een laadpaal voor een elektrische auto.
Highlights
- Rustige, kindvriendelijke doodlopende straat
- 4 slaapkamers en 2 badkamers
- Vernieuwde tuin (2025) met veranda (serre-uitbouw)
- Zonnig dakterras
- Praktische en lichte indeling
- Energielabel B en 10 zonnepanelen
- 3-fase aansluiting (EV-ready)
- Nabij Haagse Bos, centrum en strand
- 5 minuten fietsen naar Theresiastraat
- Internationale scholen in de buurt
- Uitstekende bereikbaarheid (N14, A12, A4, A44)
----------------------------------------------------------------
Spacious Family Home with Garden, Veranda & 4 Bedrooms in a Quiet Street
Located in a peaceful, child-friendly dead-end street in a green and highly sought-after area of The Hague, this well-maintained family home offers an ideal blend of comfort, space, and accessibility. The property features a bright open living area, four full-size bedrooms, and a beautifully landscaped, recently renovated garden with a stylish veranda. With excellent transport links, nearby schools, and a short distance to both the city center and the beach, this home perfectly suits modern family life.
Layout & Features
The ground floor is practical and inviting, with a spacious living room seamlessly connected to the open kitchen, creating a central hub for daily life and entertaining. At the rear, the garden was renewed in 2025 and includes a high-quality veranda (conservatory extension), providing a smooth indoor-outdoor flow and a space usable year-round.
The upper floors offer four generously sized bedrooms, ideal for families, home offices, or guests. Two bathrooms and a separate laundry room add convenience to everyday living. One of the bedrooms on the second floor opens onto a sunny rooftop terrace.
Sustainability & Comfort
- Well insulated (floor, roof, double glazing)
- HR central heating boiler (2021)
- 10 solar panels (~4 kWh) and Energy Label B
- 3-phase connection, suitable for an EV charging station
Location
- Around 10 minutes by bike to The Hague city center
- Approximately 20 minutes by bike to Scheveningen beach
- Near Haagse Bos for green relaxation
- 5 minutes by bike to Theresiastraat with cafés, shops, and restaurants
- International schools within easy reach, including The British School and HSV International Primary
- Local shopping center with Albert Heijn, Hoogvliet, Action, and Kruidvat
- Excellent for commuters with smooth connections to A12, N14, A4, A44
Highlights
- Quiet, child-friendly cul-de-sac
- 4 bedrooms and 2 bathrooms
- Renovated garden (2025) with veranda
- Sunny rooftop terrace
- Practical, light-filled layout
- Energy Label B with 10 solar panels
- EV-ready 3-phase connection
- Close to Haagse Bos, city center, and beach
- 5 minutes by bike to Theresiastraat
- International schools nearby
- Excellent accessibility
Kenmerken
Overdracht
- Vraagprijs
- € 695.000,- k.k.
- Status
- Verkocht onder voorbehoud
- Aanvaarding
- in overleg
Bouw
- Type
- Woonhuis
- Soort
- eengezinswoning
- Type woonhuis
- tussenwoning
- Bouwjaar
- 1959
- Onderhoud binnen
- goed
- Onderhoud buiten
- goed
Tuin
- Type
- achtertuin, voortuin
- Hoofd tuin
- achtertuin
- Ligging
- noord, west
- Oppervlakte
- 47 m²
Woonhuis
- Kamers
- 5
- Slaapkamers
- 4
- Verdiepingen
- 3
- Woonopp.
- 143 m²
- Inhoud
- 502 m³
- Perceelopp.
- 143 m²
- Ligging
- aan rustige weg, beschutte ligging, in woonwijk
Energie
- Energie label
- B
- Isolatie
- dakisolatie, dubbel glas, vloerisolatie
- Verwarming
- c.v.-ketel
Garage
- Type
- geen garage
Foto's
Neem contact met ons op
Bekijk de actuele rentetarieven en de maandlasten voor deze woning
Een hypotheekadviseur vinden?
Klik hier























































