
Makelaarsland Nederland B.V.
vasb#znxrynnefynaq.ay
(+31) 882 00 20 60
Wilt u weten of u deze woning kunt betalen?
Kan ik deze woning kopen?
Benieuwd naar de huidige hypotheekrentes?
Bekijk actuele hypotheek rente
Omschrijving
Stelt u zich eens voor: wonen in een rustige, doodlopende straat waar kinderen veilig buiten kunnen spelen, vogels hoorbaar zijn en u elke dag geniet van ultieme privacy en comfort. Deze ruime hoekwoning aan de Groene Draecklaan 1 in Vleuten biedt precies dat, én meer. Dankzij de praktische slaapkamer en badkamer op de begane grond is dit een ideale woning voor wie gelijkvloers wil wonen, terwijl drie ruime slaapkamers en een tweede badkamer op de verdieping het huis ook perfect maken voor gezinnen. Combineer het gemak van levensloopbestendig wonen met de charme van een gezinsvriendelijke buurt en ervaar het beste van twee werelden: comfortabel, praktisch en klaar voor de toekomst!
Algemeen:
- Bouwjaar: 2006
- Woonoppervlakte: 134 m²
- Perceel: 151 m², eigen grond
- Volledig geïsoleerd en voorzien van HR-beglazing
- Verwarming en warm water via Intergas cv-ketel (2022)
- Energielabel: B
Indeling:
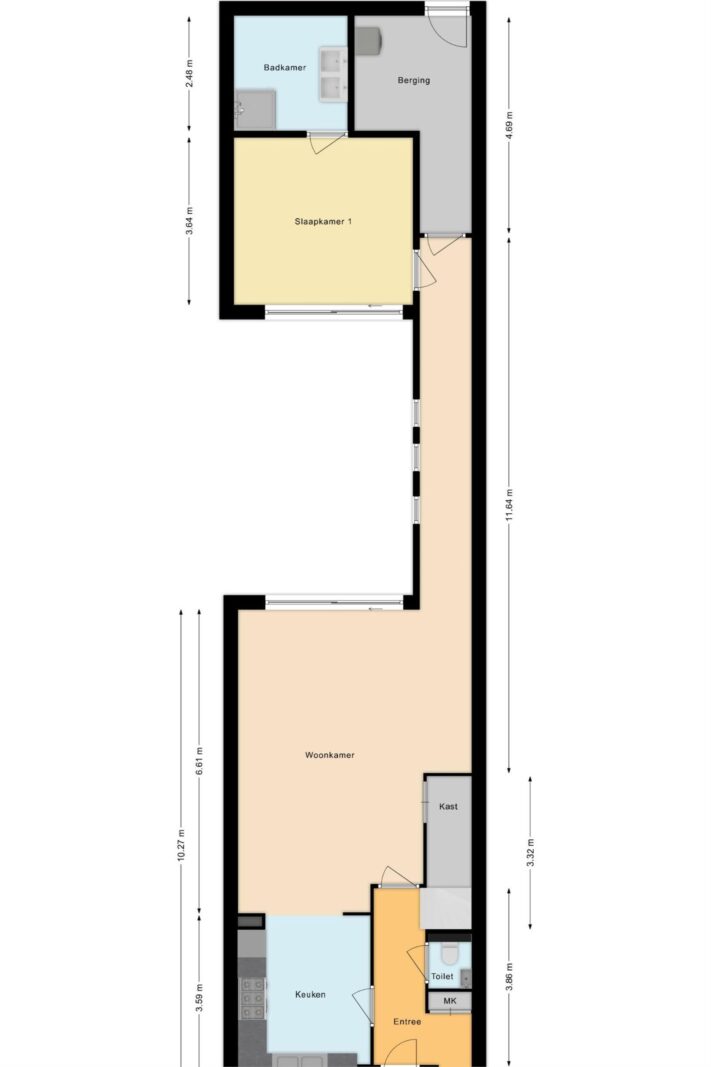
Begane grond: entree, hal, toilet, meterkast, ruime en lichte woonkamer met schuifpui naar de patio, open keuken voorzien van inbouwapparatuur, via gang bereikbare slaapkamer met directe toegang tot de badkamer met douche en dubbele wastafel, inpandige berging met wasmachineaansluiting en achterom.
Eerste verdieping: overloop, drie slaapkamers, tweede badkamer met douche en dubbele wastafel, cv-ruimte.
Tuin:
De verzorgde patio van ca. 22 m² ligt op het zuiden. Dankzij de beschutte ligging geniet u hier het hele jaar door van een fijne buitenruimte.
Ligging:
Gelegen aan een doodlopende, rustige straat in een kindvriendelijke woonwijk. Voorzieningen zoals speeltuinen, winkels, scholen, sportfaciliteiten en openbaar vervoer zijn dichtbij. Parkeren kan eenvoudig in de openbare parkeervakken direct in de omgeving.
Bijzonderheden:
- Levensloopbestendig: slaapkamer en badkamer op de begane grond
- Drie extra slaapkamers en tweede badkamer op de verdieping
- Patio op het zuiden
- Buitenschilderwerk uitgevoerd in 2024
- Keuken voorzien van o.a. 5-pits gasfornuis, oven, afzuigkap en vaatwasser
- Inpandige berging met verwarming, water en elektra
- Toegankelijk voor minder validen en ouderen
- Aanvaarding in overleg
Deze woning combineert gelijkvloers wonen met moderne gemakken en extra ruimte voor het hele gezin. Een unieke kans in Vleuten, dus plan snel een bezichtiging in!
Kenmerken
Overdracht
- Vraagprijs
- € 675.000,- k.k.
- Status
- beschikbaar
- Aanvaarding
- in overleg
Bouw
- Type
- Woonhuis
- Soort
- eengezinswoning
- Type woonhuis
- hoekwoning
- Bouwjaar
- 2006
- Onderhoud binnen
- goed
- Onderhoud buiten
- goed
Tuin
- Type
- patio/atrium
- Hoofd tuin
- patio/atrium
- Ligging
- zuid
- Oppervlakte
- 22 m²
Woonhuis
- Kamers
- 5
- Slaapkamers
- 4
- Verdiepingen
- 2
- Woonopp.
- 134 m²
- Inhoud
- 529 m³
- Perceelopp.
- 187 m²
- Ligging
- aan rustige weg, in woonwijk
Energie
- Energie label
- B
- Isolatie
- HR-glas, volledig geïsoleerd
- Verwarming
- c.v.-ketel
Garage
- Type
- geen garage
Berging
- Type
- inpandig
- Voorzieningen
- voorzien van elektra, voorzien van verwarming, voorzien van water
Foto's
Neem contact met ons op
Bekijk de actuele rentetarieven en de maandlasten voor deze woning
Een hypotheekadviseur vinden?
Klik hier




















































