
Tulp Makelaars thuisinwonen
guhvfvajbara#ghycznxrynnef.ay
050-2011420
Wilt u weten of u deze woning kunt betalen?
Kan ik deze woning kopen?
Benieuwd naar de huidige hypotheekrentes?
Bekijk actuele hypotheek rente
Omschrijving
H.F. Dresselhuisstraat 6/6A Bad Nieuweschans
Unieke kans: wonen, verhuren én ondernemen in één royaal pand.
In het centrum van Bad Nieuweschans staat een uitzonderlijk veelzijdig object te koop: Dresselhuisstraat 6 & 6A.
Dit royale pand combineert een complete horecaruimte met terras, een zelfstandige woonruimte op de begane grond én twee casco appartementen op de verdieping. Met een totaal gebruiksoppervlak van ca. 529 m², energielabel C, 18 zonnepanelen en een volledige kelder biedt het pand ongekend veel mogelijkheden voor beleggers, ondernemers, zorgaanbieders, samengestelde gezinnen of handige kopers die zoeken naar ruimte en ontwikkelpotentie.
Het pand is jarenlang in gebruik geweest als pizzeria, met zowel restaurant- als afhaalfunctie. Hierdoor is het object bijzonder geschikt voor wie horeca wil voortzetten, maar ook voor wie de ruimte wil transformeren naar andere functies of woonunits. De feitelijke bestemmingsmogelijkheden dienen door koper altijd zelf te worden onderzocht bij de gemeente.
Indeling en kenmerken.
Horecagedeelte (Dresselhuisstraat 6) - voorzijde.
De entree leidt direct naar een ruime, lichte horecaruimte met circa 30 zitplaatsen. Aan de voorzijde bevindt zich een royaal terras en parkeermogelijkheden, ideaal voor horeca, lunchroom, koffiebar of een afhaalconcept.
Voorzieningen:
- Open restaurantruimte
- Baropstelling
- Horecakeuken
- Pizzaoven (geschikt voor afhaal/bezorging)
- 3 toiletten
Zelfstandige woonruimte op de begane grond
Achter de horeca ligt een verrassend ruime zelfstandige woonunit, bestaande uit:
- Woonkamer met keuken
- Slaapkamer
- Badkamer met ligbad
- Toegang tot de zeer royale tuin
Eerste verdieping - twee casco appartementen.
De eerste verdieping beschikt over twee royale casco appartementen, ieder voorzien van:
- Een eigen badkamer met douche en toilet
- Grote, lichte ruimtes
- Eén appartement is voorzien van een keuken
Buitenruimte
- Grote achtertuin
- Achterom aanwezig
- Groot terras aan de voorzijde
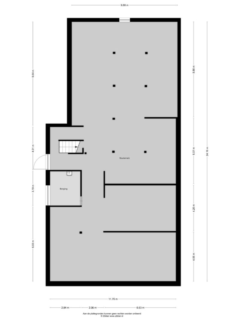
Volledige kelder
Onder het gehele pand ligt een ruime kelder, ideaal voor opslag, voorraad of werkruimte.
Duurzaamheid & Voorzieningen
- 18 zonnepanelen
- Energielabel D voor Dresselhuisstraat 6
- Energielabel C voor Dresselhuisstraat 6A
- Beide appartementen op de 1e verdieping hebben een energielabel E
- Vrijwel volledig voorzien van dubbel glas
- CV ketel AWB
Bestemming & Mogelijkheden
- Huidige bestemming: Wonen
- Afwijkingsmogelijkheden voor lichte horeca zijn historisch aanwezig; koper dient zelf bij de gemeente Oldambt te verifiëren welke functies zijn toegestaan
- Geschikt voor beleggers, ondernemers, grote gezinnen, zorgaanbieders en herontwikkeling naar meerdere woonunits
Bijzonderheden
- Verkoop met niet-zelfbewoningsclausule
- Verkoop onder as is, where is-clausule
- Aanvaarding in de huidige staat
- Kluswoning
- Bestemmingsmogelijkheden en vergunningsvereisten dienen door koper zelf te worden onderzocht
- Totaal ca. 608 m² gebruiksoppervlak dit is inclusief volledige kelder
Vraagprijs: € 239.500,- k.k.
Plan gerust een bezichtiging en ontdek de mogelijkheden!
Kenmerken
Overdracht
- Vraagprijs
- € 239.500,- k.k.
- Status
- Verkocht onder voorbehoud
- Aanvaarding
- in overleg
Bouw
- Type
- Woonhuis
- Soort
- eengezinswoning
- Type woonhuis
- vrijstaande woning
- Bouwjaar
- 1970
- Onderhoud binnen
- redelijk
- Onderhoud buiten
- redelijk
Tuin
- Type
- achtertuin, voortuin
- Hoofd tuin
- achtertuin
- Ligging
- noord
- Oppervlakte
- 299 m²
Woonhuis
- Kamers
- 5
- Slaapkamers
- 3
- Verdiepingen
- 3
- Woonopp.
- 343 m²
- Inhoud
- 2.258 m³
- Perceelopp.
- 870 m²
- Ligging
- in centrum
Energie
- Energie label
- D
- Isolatie
- gedeeltelijk dubbel glas, HR-glas
- Verwarming
- c.v.-ketel
Garage
- Type
- geen garage
Berging
- Type
- inpandig
Foto's
Plattegronden
Kaart
Neem contact met ons op
Bekijk de actuele rentetarieven en de maandlasten voor deze woning
Een hypotheekadviseur vinden?
Klik hier




















































