
Makelaarsland Nederland B.V.
vasb#znxrynnefynaq.ay
(+31) 882 00 20 00
Wilt u weten of u deze woning kunt betalen?
Kan ik deze woning kopen?
Benieuwd naar de huidige hypotheekrentes?
Bekijk actuele hypotheek rente
Omschrijving
Instapklare drive-in woning met inpandige garage.
Deze woning is gelegen in een rustige, kindvriendelijke wijk aan de rand van Eindhoven. De woning beschikt over een royale open woon- en eetkamer, een moderne keukeninrichting, een lichte badkamer en drie ruime slaapkamers. De grote tuin ligt op het zuiden en in de nabijheid is een park (de groene long), sportpark, speeltuin en het natuurgebied de Zegge.
De woning is voorzien van zonnepanelen, CV-installatie en een houtkachel, waardoor je profiteert van lage energielasten. Met energielabel A is deze woning comfortabel, duurzaam en toekomstbestendig.
Dichtbij zijn winkels, basisscholen, sportscholen en binnen 10/15 minuten bent u met auto, openbaar vervoer of fiets in het centrum van Eindhoven.
Verkoop via Makelaarsland.
Kenmerken
•Type woning: Eengezinswoning (drive-in tussenwoning)
•Verdiepingen: 3
•Slaapkamers: 3
•Woonoppervlakte: 125 m²
•Inhoud: 476 m³
•Perceeloppervlakte: 163 m²
•Bouwjaar: 1973
•Energielabel: A
•Energiezuinig: 9 zonnepanelen
•Verwarming: CV + houtkachel
•Tuin: tuin op het zuiden
•Garage: inpandig
•Kozijnen: hardhouten kozijnen met voornamelijk dubbele beglazing
•Ligging: dichtbij winkels, bij park, sportpark, speeltuin en natuurgebied "De Zegge"
•Bereikbaarheid: snelle uitvalswegen naar Geldrop en Helmond; 10 min. rijden naar centrum Eindhoven
•Indicatieve marktwaarde: € 475.000 k.k. (opname 01-09-2025)
Begane grond
•Indeling: entree, hal, garage, wasruimte, toilet, slaapkamer
•Vanuit de voortuin en eigen oprit bereikt u de entree met meterkast.
•Inpandige garage met elektrische garagedeur en afstandsbediening.
•In de hal bevindt zich de trap naar de eerste verdieping en een betegeld dames en heren toilet met apart heren hangurinoir.
•Cv-ruimte met cv-combiketel, omvormer voor zonnepanelen, en ruimte voor wasmachine en droger, een wasbak met mengkraan en kastruimte.
•Slaapkamer beneden met directe deur naar de tuin.
•De vloer van de begane grond is volledig betegeld.
Buitenruimte
•Indeling: zithoek, tuin, berging
•In de achtertuin bevindt zich onder het balkon/overkapping een zitruimte met elektrapunten en ingebouwde plafondverlichting.
•Aangrenzend: grote tuin met aan beide zijden erfscheidingen.
•Aan het einde van de tuin bevindt zich een ruime geïsoleerde berging, uitgerust met 3-fase elektra, automatische verlichting en watervoorziening.
•De berging heeft een vrije achterom, een eigen uitgang met 2 grote deuren, ideaal voor fietsen, een motor of kleine aanhanger.
Eerste verdieping
•Indeling: woonkamer, keuken
•De eerste verdieping beschikt over een royale woon- en eetkamer met open keuken.
•De vloer is volledig betegeld en gestucte lichte wanden en plafond.
•Aan de achterzijde van de woning komt u via een deur op het balkon met uitzicht op de tuin.
•In de woonkamer is een houtkachel, die tijdens de winterperiode extra warmte en gezelligheid biedt.
Moderne keuken
•De keuken heeft een granieten werkblad en boven- en onderkasten.
•Uitgerust met hoogwaardige apparatuur:
o5-pits gaskookplaat
oAfzuigkap
oHeteluchtoven
oKoelkast/vriescombinatie
oVaatwasser
oSpoelunit met mengkraan
Tweede verdieping
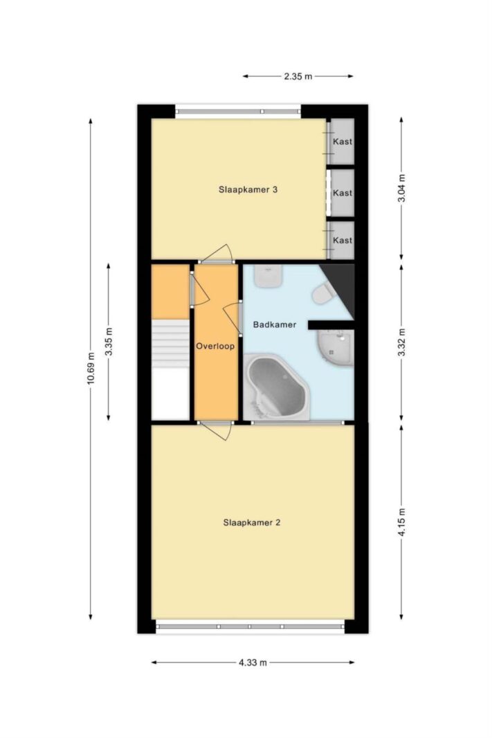
•Indeling: overloop, 2 slaapkamers, badkamer
•Vanuit de trap in de woonkamer bereikt u de overloop, die toegang geeft tot 2 ruime slaapkamers en de badkamer.
•Deze verdieping heeft een laminaatvloer.
•De grootste slaapkamer bevindt zich aan de voorzijde van de woning en kijkt uit op de straat. Deze kamer heeft een verlaagd plafond met ledverlichting.
•De tweede slaapkamer ligt aan de achterzijde van de woning en beschikt over een vaste kastenwand. Het achterraam is voorzien van een rolluik.
•De ruime badkamer is voorzien van:
o2-persoons hoekligbad
oLosse douchecabine
oHangtoilet
oWastafel met onderkast
oWandmeubel
•Het plafond is verlaagd met inbouwspots.
•De betegelde vloer heeft ingebouwde vloerverwarming.
Pluspunten
•Royale open woon- en eetkamer
•Moderne keukeninrichting
•Lichte badkamer
•Drie grote slaapkamers
•Groot balkon
•Tuin op het zuiden
•Inpandige garage
•CV-installatie en sfeervolle houtkachel
•Voorzien van 9 zonnepanelen
•Energielabel A – energiezuinig wonen
•Dichtbij winkels
•Direct bij groot park met speelgelegenheid en sportpark
•Aan natuurgebied "De Zegge"
•Goede bereikbaarheid van uitvalswegen naar Geldrop en Helmond
•Binnen 15 minuten met OV/fiets of 10 min. rijden naar centrum Eindhoven
•Rustige en groene woonomgeving
Interesse?
Maak een afspraak voor een bezichtiging en ervaar zelf het comfort, de ruimte, de duurzame voorzieningen én de ideale ligging van Haagbeemd 15 te Eindhoven.
Contact via Makelaarsland:
Kenmerken
Overdracht
- Vraagprijs
- € 450.000,- k.k.
- Status
- beschikbaar
- Aanvaarding
- in overleg
Bouw
- Type
- Woonhuis
- Soort
- eengezinswoning
- Type woonhuis
- tussenwoning
- Bouwjaar
- 1973
- Onderhoud binnen
- goed
- Onderhoud buiten
- goed
Tuin
- Type
- achtertuin, voortuin
- Hoofd tuin
- achtertuin
- Ligging
- zuid
- Oppervlakte
- 96 m²
Woonhuis
- Kamers
- 6
- Slaapkamers
- 3
- Verdiepingen
- 3
- Woonopp.
- 125 m²
- Inhoud
- 476 m³
- Perceelopp.
- 163 m²
- Ligging
- aan rustige weg, in woonwijk
Energie
- Energie label
- A
- Isolatie
- dakisolatie, dubbel glas, muurisolatie
- Verwarming
- c.v.-ketel, houtkachel, vloerverwarming gedeeltelijk
Garage
- Type
- inpandig
- Capaciteit
- 1 auto
Berging
- Type
- vrijstaand hout
Foto's
Neem contact met ons op
Bekijk de actuele rentetarieven en de maandlasten voor deze woning
Een hypotheekadviseur vinden?
Klik hier





























