
INZuid Real Estate
vasb#21mhvq.ay
0621212121
Wilt u weten of u deze woning kunt betalen?
Kan ik deze woning kopen?
Benieuwd naar de huidige hypotheekrentes?
Bekijk actuele hypotheek rente
Omschrijving
Uniek stadshuis aan de Kampervest _ wonen, werken en genieten aan het water!
Aan de Kampervest, waar ooit de oude stadsmuur van Haarlem stond, staat dit charmante stadshuis (ca. 1880) met zonnige gele gevel. Geheel GERENOVEERD en volledig geïsoleerd, met dakterras en zonnepanelen.
De woning (ca. 137 m²) biedt verrassend veel ruimte, indelings- en gebruiksmogelijkheden:
Het huis beschikt over dubbele voorzieningen: living, badkamer, keuken(-aansluiting) en slaapkamer(s) bevinden zich zowel op de bovenverdiepingen als op de begane grond. En genieten van de zon kan ook op beide niveaus: op het dakterras én gezellig beneden aan de straat.
De BEGANE GROND biedt bovendien de flexibiliteit van GEMENG GEBRUIK; bijvoorbeeld hobbyruimte, atelier, yogastudio, kantoor of praktijk aan huis.
De woning is uitstekend bereikbaar en gunstig gelegen nabij diverse voorzieningen. Het centrum van Haarlem en een supermarkt bevinden zich op loopafstand, een treinstation is per fiets eenvoudig bereikbaar, en de eerste uitvalsweg ligt op slechts 9 minuten rijden.
Kortom: duurzaam wonen in dit fijne huis op een gezellige, centrale plek met historische sfeer en een schilderachtig vrij uitzicht op het water.
INDELING
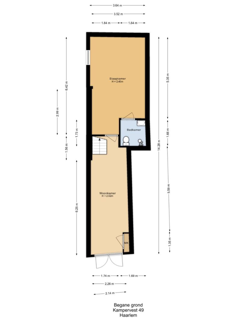
-Begane grond:
Entree, multifunctionele leefruimte (ca. 40 m²), royale (slaap-/studio)kamer met keukenblok-aansluiting, badkamer met toilet, douche en wastafel. Geschikt voor wonen én werken (praktijk, kantoor, winkel of hobbyruimte).
Dubbele voordeur -> ideaal voor een zitje in de zon of zelfs voor een kleine elektrische auto.
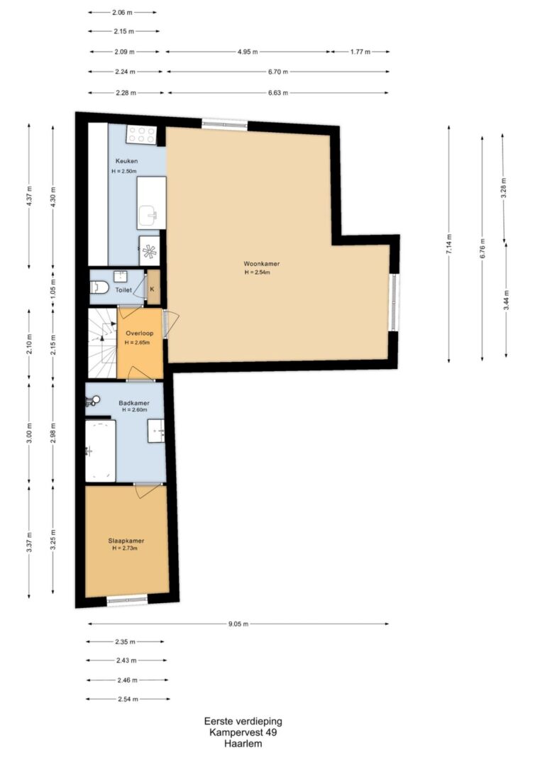
-Eerste verdieping:
Overloop, toilet, ruime woonkamer met open keuken en spoeleiland, badkamer met ligbad, douche, wastafelmeubel en handdoekradiator, slaapkamer (ca. 8 m²).
-Tweede verdieping:
Overloop, slaapkamer (ca. 16 m²), wasruimte en toegang tot het dakterras.
DETAILS:
-Volledig gerenoveerd en instapklaar
-Gelegen in beschermd stads- of dorpsgezicht
-5 kamers, 2 badkamer, 2 keuken(-aansluiting)
-Mogelijkheid tot gemengd gebruik (bedrijfsruimte) begane grond
-Dakterras met kleurrijk uitzicht op de daken
-Optie voor extra ramen in woonkamer en kamer BG
-6 zonnepanelen -> ca. 30% lagere energiekosten
-Dak vernieuwd, nieuwe kozijnen
-Elektra en leidingen vernieuwd
-Dakisolatie, muurisolatie, dubbel glas -> Energielabel A
-Eigen grond (geen erfpacht)
-Perceel ca. 92 m²
-Vaarwater voor de deur, vrij uitzicht
-Parkeervergunning zone B (€ 228,72 per jaar)
Unique townhouse on the Kampervest _ living, working and enjoying life by the water!
On the Kampervest, where Haarlem's old city wall once stood, you will find this charming townhouse (c. 1880) with its sunny yellow façade. Fully RENOVATED and insulated, featuring a roof terrace and solar panels.
The house (approx. 137 m²) offers a surprising amount of space, layout flexibility and multiple uses:
It is equipped with double facilities: living room, bathroom, kitchen (connection) and bedroom(s) can be found both on the upper floors and on the ground floor. And you can enjoy the sun on both levels: on the roof terrace as well as down at street level.
The GROUND FLOOR also provides the flexibility of MIXED USE ; for example a hobby room, art studio, yoga studio, home office or private practice.
The property is excellently accessible and conveniently located near a wide range of amenities. Haarlem city centre and a supermarket are within walking distance, the train station is easily reached by bike, and the first arterial road is just a 9-minute drive away.
In short: sustainable living in this delightful home at a lively, central location with historic charm and a picturesque, open view of the water.
LAYOUT
-Ground floor:
Entrance, multifunctional living space (approx. 40 m²), spacious (bedroom/studio) with kitchenette connection, bathroom with toilet, shower and washbasin. Suitable for both living and working (practice, office, shop or hobby space).
Double front door -> ideal for a sunny seating area or even a small electric car.
-First floor:
Landing, toilet, spacious living room with open kitchen and cooking island, bathroom with bathtub, shower, washbasin unit and towel radiator, bedroom (approx. 8 m²).
-Second floor:
Landing, bedroom (approx. 16 m²), laundry room and access to the roof terrace.
DETAILS
-Fully renovated and move-in ready
-Located in a designated protected townscape (heritage area)
-5 rooms, 2 bathrooms, 2 kitchens (connections)
-Mixed-use option on the ground floor; option to use as commercial or office space
-Roof terrace with colourful rooftop views
-Option to add extra windows in ground-floor room and living room
-6 solar panels -> approx. 30% lower energy costs
-Roof renewed, new window frames
-Electricity and pipework renewed
-Roof insulation, wall insulation, double glazing -> Energy label A
-Freehold property (no ground lease)
-Plot size approx. 92 m²
-Direct access to navigable water, unobstructed view
-Resident parking permit zone B (€228.72 per year)
Kenmerken
Overdracht
- Vraagprijs
- € 745.000,- k.k.
- Status
- beschikbaar
- Aanvaarding
- in overleg
Bouw
- Type
- Appartement
- Soort
- beneden + bovenwoning
- Bouwjaar
- voor 1906
- Onderhoud binnen
- uitstekend
- Onderhoud buiten
- uitstekend
Appartement
- Kamers
- 4
- Slaapkamers
- 2
- Verdiepingen
- 3
- Woonopp.
- 137 m²
- Inhoud
- 473 m³
- Ligging
- aan vaarwater, in centrum, in woonwijk, vrij uitzicht
Energie
- Energie label
- A
- Isolatie
- dakisolatie, dubbel glas, muurisolatie, volledig geïsoleerd
- Verwarming
- c.v.-ketel
Garage
- Type
- geen garage
Foto's
Kaart
Neem contact met ons op
Bekijk de actuele rentetarieven en de maandlasten voor deze woning
Een hypotheekadviseur vinden?
Klik hier















































