
Faasse & Fermont makelaars te Goes
vasb#snnffr-srezbag.ay
0113-250555
Wilt u weten of u deze woning kunt betalen?
Kan ik deze woning kopen?
Benieuwd naar de huidige hypotheekrentes?
Bekijk actuele hypotheek rente
Omschrijving
Midden in het historische stadscentrum van Goes, met uitzicht op de stadshaven, staat dit rijks-monumentale herenhuis uit 1616. De woning biedt met circa 360 m² woonoppervlakte en 194 m² overige ruimte een zee aan ruimte en mogelijkheden. Meerdere huishoudens kunnen hier comfortabel wonen, maar ook een combinatie van wonen en werken, een bed & breakfast of een meer-generatiewoning behoort tot de mogelijkheden. Dit bijzondere pand laat zich op uiteenlopende manieren gebruiken.
Achter de karakteristieke voordeur gaan officieel drie adressen schuil: Keizerstraat 1, 1a en 1b. De begane grond kan dienen als woon- of kantoorruimte. Op de eerste verdieping bevindt zich een royale woning en op de tweede verdieping een zelfstandige woonruimte. De huidige eigenaren hebben deze etage lange tijd verhuurd, maar gebruiken inmiddels het gehele pand zelf.
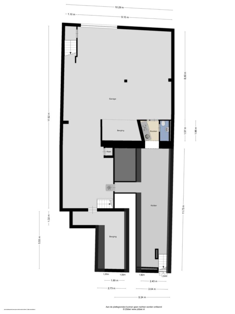
In het souterrain bevindt zich een ruime garage met plaats voor vier auto's, bereikbaar via de achtergelegen straat. Daarnaast zijn er een grote hobbyruimte en een sfeervolle gewelfkelder aanwezig. Het riante dakterras van circa 100 m² maakt het geheel compleet.
De woning is door de jaren heen gerenoveerd en grotendeels aangepast aan de eisen van hedendaags wooncomfort, met behoud van het karakter en de authentieke details zoals hoge balkenplafonds, paneeldeuren, marmeren vloeren en een fraaie dakconstructie met ronde sporen. Het dak, de ramen en de muren zijn grotendeels geïsoleerd. Vanwege de monumentenstatus is geen energielabel beschikbaar.
Het historische centrum, de winkels en diverse horecagelegenheden liggen op loopafstand. Vanuit Goes bereikt u binnen circa 50 minuten Antwerpen, Breda of Rotterdam. Ook Zeeuws-Vlaanderen is via de Westerscheldetunnel goed bereikbaar.
________________________________________
Indeling
Begane grond
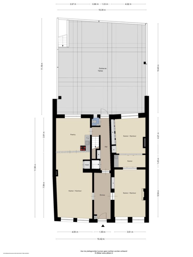
Achter de monumentale voordeur bevindt zich een royale hal met marmeren vloer, toilet, trapopgang en meterkast. Achterin de hal is een deur naar het dakterras.
Links van de hal ligt een ruimte van circa 45 m², ingedeeld met een voor- en achterkamer en een pantry. Rechts is een vergelijkbare ruimte van circa 40 m² met eveneens een voor- en achterkamer en een eenvoudig keukenblok. Deze ruimten kunnen uitstekend worden gebruikt als kantoor, praktijk of extra woonruimte.
Eerste verdieping
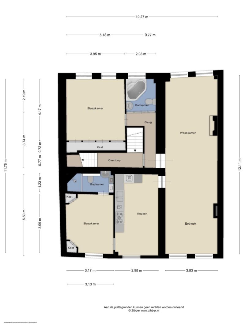
De overloop geeft toegang tot woning 1a en de trap naar de tweede etage. Via de hal bereikt u de sfeervolle woonkamer (ca. 40 m²) met karakteristieke balkenplafonds, een zithoek met uitzicht op het dakterras en een eethoek met zicht op de stadshaven. Aangrenzend ligt de woonkeuken met diverse inbouwapparatuur.
Aan de voorzijde bevindt zich een slaapkamer (ca. 12 m²) met een badkamer en suite voorzien van douche, toilet en wastafel. Aan de achterzijde ligt een tweede slaapkamer (ca. 16 m²) met vaste kastenwand. De royale badkamer beschikt over een whirlpool, wastafel en toilet.
Tweede verdieping
De tweede etage vormt feitelijk een zelfstandige woning. Er is een ruime overloop met wastafelmeubel, toegang tot de bergzolder en een dakluik naar het platte dak. Aan de achterzijde liggen twee slaapkamers (beide ca. 10 m²) met vaste kasten. Aan de voorzijde bevindt zich een woonkeuken met eenvoudige inrichting en een badkamer met whirlpool, douche, toilet en wastafel. Ook op deze etage is een grote woonkamer (ca. 3,50 x 12 m) met een authentieke uitstraling dankzij de zichtbare monumentale kapconstructie en kan desgewenst worden opgesplitst.
Derde verdieping
De zolder is bereikbaar via een vaste trap en biedt extra bergruimte.
Souterrain
De garage is toegankelijk via de achtergelegen straat of via de trap vanaf het dakterras en biedt plaats aan vier auto's. Verder is er ruimte voor een werkbank en veel bergruimte. De gerenoveerde gewelfkelder met stahoogte en luik naar de Keizerstraat is een bijzondere ruimte, ideaal als bar of wijnkelder. Hier bevindt zich tevens een toilet en een eenvoudig keukenblok.
Terras
Het dakterras van circa 100 m² ligt op het dak van de garage. Dankzij de ligging op het westen geniet u hier volop van de middag- en avondzon. Het terras biedt veel privacy en vormt een oase van rust midden in de binnenstad.
________________________________________
Zoekt u een royale woning die wonen, werken en verhuren combineert of waarin u eenvoudig zeer ruim kunt wonen? Dan is dit monumentale pand zeker een bezichtiging waard.
Vraagprijs: € 1.250.000,- k.k.
Oplevering: in overleg
Kenmerken
Overdracht
- Vraagprijs
- € 1.250.000,- k.k.
- Status
- beschikbaar
- Aanvaarding
- in overleg
Bouw
- Type
- Woonhuis
- Soort
- herenhuis
- Type woonhuis
- tussenwoning
- Bouwjaar
- 1616
- Onderhoud binnen
- goed
- Onderhoud buiten
- goed
Woonhuis
- Kamers
- 10
- Slaapkamers
- 5
- Verdiepingen
- 5
- Woonopp.
- 364 m²
- Inhoud
- 1.977 m³
- Perceelopp.
- 267 m²
- Ligging
- aan rustige weg, aan water, beschutte ligging, in centrum, vrij uitzicht
Energie
- Isolatie
- dakisolatie, dubbel glas, muurisolatie
- Verwarming
- c.v.-ketel
Garage
- Type
- inpandig
- Capaciteit
- 4 autos
Berging
- Type
- inpandig
- Voorzieningen
- voorzien van elektra
Foto's
Plattegronden
Video
Kaart
Neem contact met ons op
Bekijk de actuele rentetarieven en de maandlasten voor deze woning
Een hypotheekadviseur vinden?
Klik hier







































































