
Makelaarsland Nederland B.V.
vasb#znxrynnefynaq.ay
088-2002000
Wilt u weten of u deze woning kunt betalen?
Kan ik deze woning kopen?
Benieuwd naar de huidige hypotheekrentes?
Bekijk actuele hypotheek rente
Omschrijving
Dit prachtige appartement in het hart van Amsterdam, met een oppervlakte van 87 m² bevindt zich op de derde verdieping van het monumentale pakhuis “de Gekroonde Hand” met twee Franse balkons en zicht op de Dominicuskerk.
De woning is gelegen aan de zeer rustige Teerketelsteeg en heeft zijn entree aan de Koggestraat, een zijstraat van de Singel. De ligging midden in het oude centrum, nabij De Jordaan, de Haarlemmerbuurt en ietsje verderop de Nieuwmarktbuurt biedt deze locatie ongekende mogelijkheden. Het centraal station is op loopafstand.
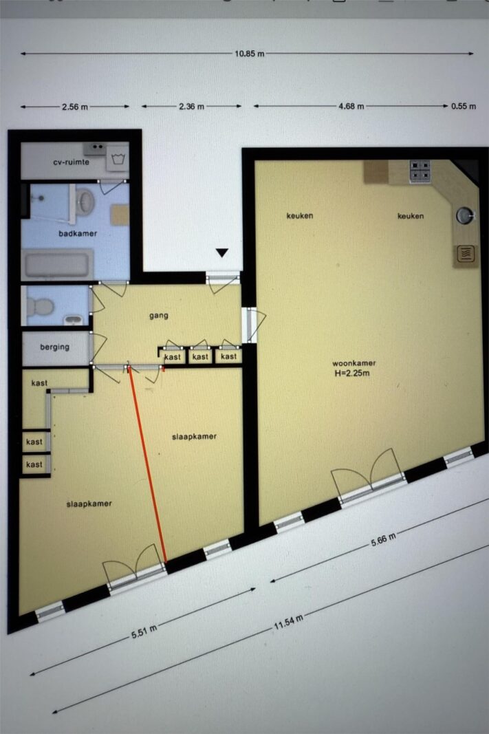
Middels de trap bereikt u de derde verdieping en voor de zware boodschappen kunt u gebruik maken van de goederenlift (uniek). In de hal met een nieuwe video intercom en een vaste kastenwand bevindt zich het toilet met fontein, een separate berging en geeft toegang tot de badkamer, woonkamer en slaapkamer. De woonkamer met balkenplafond heeft een verhoging aan de voorzijde met grote raampartijen met veel lichtinval met Frans balkon. Open keuken v.v. diverse inbouwapparatuur. Het authentieke balkenplafond maakt dit een echt sfeervol pakhuisappartement. De badkamer met douche en ligbad is geheel met marmer bekleedt en heeft een toegang tot de afgesloten CV ruimte, waar plek is voor een wasmachine. De ruime slaapkamer heeft een speelse indeling en is voorzien van een mooie vaste kastenwand. Ook hier vindt u een verhoging met openslaande deuren naar het tweede Franse balkon, waarvandaan u een zicht op de Dominicuskerk heeft. Het is ook mogelijk om een tweede slaapkamer te creëren. Het betreft een goed onderhouden woning waar u zo in kunt trekken. De gehele woning is voorzien van een stoere massief houten vloer. De handige intercom installatie zorgt ervoor dat u kunt zien wie er beneden voor de deur staat. Het betreft een goede en prettige functionerende Vereniging van Eigenaren. De servicekosten voor het appartement bedragen Euro 85,- per maand.
Parkeren
Parkeren is mogelijk via het parkeer vergunningenstelsel, en er zijn openbare parkeergarages waar je een parkeer abonnement kunt nemen.
Bijzonderheden:
- Goed onderhouden gebouw.
- Twee Franse balkons.
- Alles op 1 woonlaag.
- Rijksmonument gelegen op eigen grond.
- Goederenlift voor de zware boodschappen.
- Centrale ligging in het hart van Amsterdam.
- Nabijheid van winkels en restaurants.
- Centraal station op loopafstand.
- Zeer rustig gelegen appartement achter de Singel.
- Eigen CV uit 2023.
- Gezonde Vereniging van Eigenaren.
- Bijdrage VVE is Euro 85,- per maand.
- Gemeenschappelijke berging.
- Ruime woonkamer en slaapkamer met veel ramen.
- Authentiek pakhuis met oude balken.
- Sfeervol, knus appartement.
- Geen erfpacht, eigen grond.
- Mogelijkheid tot het creëren van een tweede slaapkamer.
Kenmerken
Overdracht
- Vraagprijs
- € 598.000,- k.k.
- Status
- beschikbaar
- Aanvaarding
- in overleg
Bouw
- Type
- Appartement
- Soort
- bovenwoning
- Bouwjaar
- 1905
- Onderhoud binnen
- redelijk
- Onderhoud buiten
- goed
Appartement
- Kamers
- 2
- Slaapkamers
- 1
- Verdiepingen
- 1
- Woonopp.
- 87 m²
- Inhoud
- 287 m³
- Ligging
- in centrum
Energie
- Isolatie
- dubbel glas
- Verwarming
- c.v.-ketel
Garage
- Type
- geen garage
Foto's
Neem contact met ons op
Bekijk de actuele rentetarieven en de maandlasten voor deze woning
Een hypotheekadviseur vinden?
Klik hier






























