
Klaverbladmakelaars
vasb#xynireoynqznxrynnef.ay
Wilt u weten of u deze woning kunt betalen?
Kan ik deze woning kopen?
Benieuwd naar de huidige hypotheekrentes?
Bekijk actuele hypotheek rente
Omschrijving
Je krijgt hier veel meer dan je op het eerste gezicht zou verwachten. Achter de voorgevel schuilt een echt pareltje van een woning: uitstekend onderhouden en helemaal van deze tijd.
* Woonoppervlakte ca.104 m²
* 965 m² eigen grond
* Achtertuin van ca. 125 diep
* Energielabel B (8 zonnepanelen)
* Ca. 2016/17 zijn de bijkeuken en badkamer gerealiseerd
* Dak geïsoleerd en gerenoveerd in rond 2017
* Schilderwerk buitenom uitgevoerd in 2025
* Cv ketel vernieuwd in 2024
* Vloerverwarming (woonkamer keuken eetkamer bijkeuken en badkamer)
* Mogelijkheid tot het creëren van een extra slaapkamer met een bredere dakkapel
Zowel aan de voor- als achterzijde geniet je van vrij uitzicht. Spreekt dit je aan en ben je nieuwsgierig geworden? Neem gerust contact op voor een bezichtiging, Meek it possible.
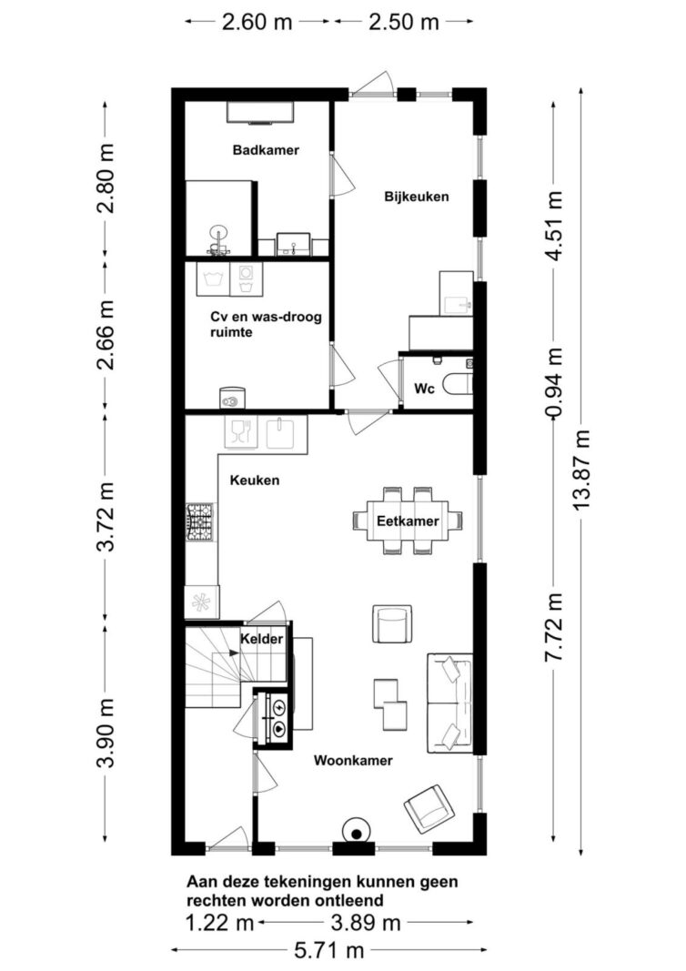
De indeling is als volgt;
uiteraard komen we binnen via de achterdeur. Gelijk in de hele ruime bijkeuken met rechts de badkamer en daarnaast een was,-droogmachine ruimte. Ook hangt hier de cv ketel (2024) en is er ruimte voor voorraden of bv een extra koelkast.
In de hoek tegen de toiletruimte is nog een kleine hoekkeuken voor bv de kleine wasjes of naar eigen idee te gebruiken.
Door naar de eetkamer en fraaie ruime hoekkeuken, uiteraard voorzien van de nodige apparatuur. Er is nog een kastruimte/keldertje.
De eetkamer voor de keuken is lekker ruim en er is nog een zijraam voor extra lichtinval.
De woonkamer aan de voorzijde heeft een houtkachel en door de ramen komen morgens heerlijke warme zonnestralen naar binnen, begin de dag met een lach. De gehele begane grond heeft vloerverwarming (voorste hal niet) met pvc vloerafwerking.
In de hal met de voordeur is eveneens de meterkast die is gemoderniseerd. De trap naar de verdieping is ook in de hal.
Op de verdieping zijn 2 slaapkamers en een enorm grote overloop met kastenwand. Er is een bescheiden wasruimte en toilet op de verdieping. Mocht je 3 slaapkamers willen (nodig zijn) dan zou je een bredere dakkapel kunnen plaatsen waardoor je een ruime slaapkamer erbij creëert. Boven is alles ook net als beneden heel netjes afgewerkt. Instap klaar? Voor de meesten wel denk ik. Kom gewoon kijken en beleven, vooral de achtertuin is een "lange" belevenis.
In de tuin staan 2 ruime bergingen eentje van 6,80 bij 3,80 meter en 3,90 bij 4,40 meter. Er is nog een mooie kippenhok die desgewenst met de kippen achterblijft. In het midden de de ca. 125 meter lange tuin een vijver. Helemaal aan het eind van de tuin nog een heerlijke zitplek onder een boom van de buren om te genieten van de ondergaande zon.
Kenmerken
Overdracht
- Vraagprijs
- € 365.000,- k.k.
- Status
- Verkocht onder voorbehoud
- Aanvaarding
- in overleg
Bouw
- Type
- Woonhuis
- Soort
- eengezinswoning
- Type woonhuis
- halfvrijstaande woning
- Bouwjaar
- 1938
- Onderhoud binnen
- goed
- Onderhoud buiten
- goed
Tuin
- Type
- achtertuin, voortuin
- Hoofd tuin
- achtertuin
- Ligging
- zuid, west
- Oppervlakte
- 900 m²
Woonhuis
- Kamers
- 3
- Slaapkamers
- 2
- Verdiepingen
- 2
- Woonopp.
- 104 m²
- Inhoud
- 335 m³
- Perceelopp.
- 965 m²
- Ligging
- landelijk gelegen, vrij uitzicht
Energie
- Energie label
- B
- Isolatie
- HR-glas, dakisolatie, muurisolatie, vloerisolatie, volledig geïsoleerd
- Verwarming
- c.v.-ketel, houtkachel, vloerverwarming gedeeltelijk
Garage
- Type
- geen garage
Berging
- Type
- vrijstaand hout
- Voorzieningen
- voorzien van elektra
- Isolatie
- geen isolatie
Foto's
Kaart
Neem contact met ons op
Bekijk de actuele rentetarieven en de maandlasten voor deze woning
Een hypotheekadviseur vinden?
Klik hier































