
Makelaarsland Nederland B.V.
vasb#znxrynnefynaq.ay
(+31) 882 00 20 00
Wilt u weten of u deze woning kunt betalen?
Kan ik deze woning kopen?
Benieuwd naar de huidige hypotheekrentes?
Bekijk actuele hypotheek rente
Omschrijving
Ben jij op zoek naar een ruime (144m2), instapklare en energiezuinige (B) hoekwoning (5 slaapkamers) met een royaal en sfeervol dakterras (12m2) op een mooie locatie in Nieuwland, op slechts twee minuten rijden van de snelweg? Ga er dan even goed voor zitten, want deze woning in het rustige Waterkwartier is dan zeker een optie.
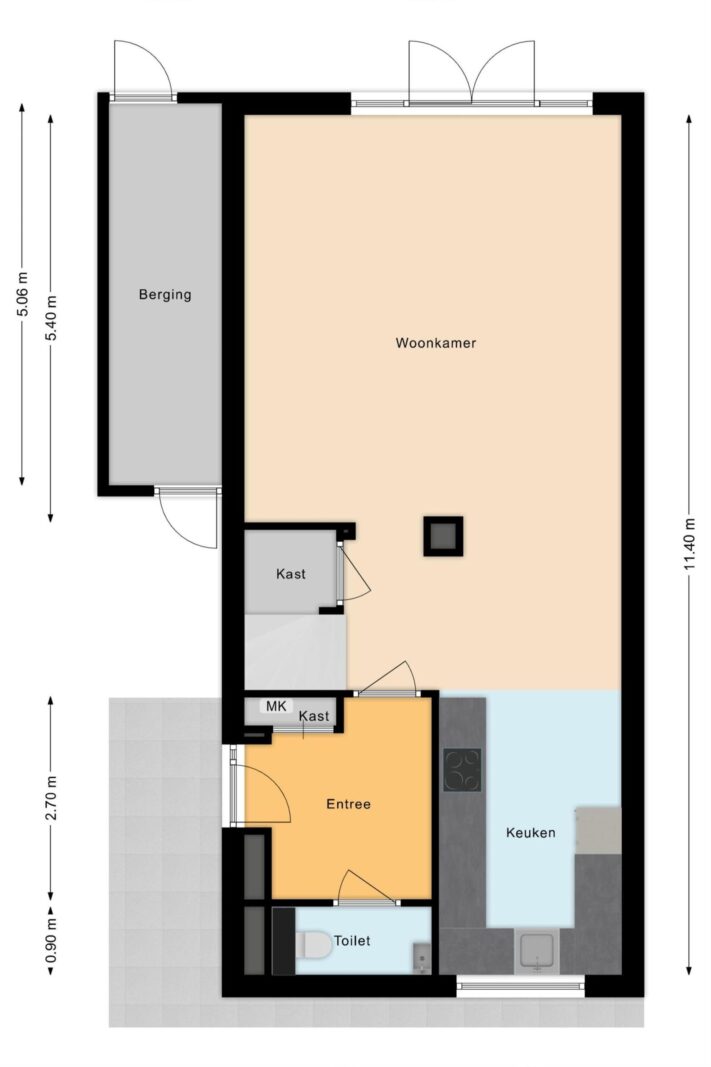
BEGANE GROND
Entree met toegang tot meterkast, toilet en ruimte voor garderobe. Via een deur betreed je de ruime woonkamer, waarbij de grote raampartijen zorgen voor veel lichtinval. Via de dubbele openslaande kunststof deuren loop je zo de zonnige, onderhoudsarme achtertuin in (ong. 50m2), welke gelegen is op het zuiden. In de tuin staat een nieuwe ingegraven trampoline (05/2025) die achterblijft en garant voor veel spring-/speelplezier. De berging is recent (07/2025) opnieuw bekleed met Douglas houten planken.
De strakke U- vormige keuken (11/2022) is van alle gemakken voorzien:
- Quooker (met flexibele slang)
- Twee Whirlpool combi-ovens (73 liter), waarvan één met stoomfunctie
- Whirlpool inductiekookplaat
- Whirlpool afzuigkap
- Whirlpool apparatuur heeft nog (verlengde) garantie t/m 11/2027
- Bosch vaatwasser (01/2025), twee jaar fabrieksgarantie via Coolblue
- Slimme apothekerskast bij de wastafel voor praktische extra opbergruimte
- Degelijke carrouselkasten in de hoeken voor optimale ruimtebenutting
De trap naar de eerste verdieping is bekleed met heerlijk zachte, comfortabele en geluiddempende bekleding (07/2025). De benedenverdieping beschikt overigens over vloerverwarming.
In de voortuin (2022) is een handige ruimte gecreëerd voor de afvalcontainers. Verder is er daar ook nog een echte eyecatcher te vinden: een luxe waterornament met twee fonteintjes en sfeervolle verlichting. Vlakbij de voordeur is een hele praktische berging bijgebouwd (2022, ca. 10m2), welke ideaal is voor bijvoorbeeld een bakfiets. Deze bergruimte is vanaf twee kanten te benaderen (ook vanuit de achtertuin).
EERSTE VERDIEPING
Op de eerste verdieping biedt de overloop toegang tot drie ruime slaapkamers, een opbergkast en de geheel gerenoveerde badkamer (07/2025) met ligbad, inloopdouche, toilet en zeer fraaie lichte marmerlook wandtegels met grijsaccenten.
De ‘master bedroom’ bevat dubbele openslaande kunststof deuren (waarvan de rechterdeur een draai-/kiepstand heeft) naar een ruimte die gemakkelijk is in te richten als balkon (hekwerk plaatsen; zie voorbeeld enkele tientallen meters verderop in de Posthoornslak). De grote ramen (HR++) in deuren zorgen voor een zeer fijne lichtinval in de slaapkamer. De overige slaapkamers zijn uitgerust met kunststof ramen (draai-/kiepstand) en hebben beide een passende hor, handig om in de zomeravonden wat koele briesjes binnen te laten en tegelijkertijd de muggen buiten te houden.
Ook de trap naar de tweede verdieping is bekleed met dezelfde heerlijk zachte, comfortabele en geluiddempende bekleding (07/2025) als op de onderste trap. De bekleding loopt ook heel stijlvol door op de overloop van de tweede verdieping.
TWEEDE VERDIEPING
De overloop op de tweede verdieping biedt toegang tot twee riante slaapkamers (zo’n 11 en 12.5m2 groot), een ruim washok met aansluitingen voor wasmachine en droger en de ruimte met CV (Remeha HR, 2011). De grootste van de twee slaapkamers betreft een dakopbouw (2021) welke ook toegang geeft tot een heerlijk dakterras, waar je ook ’s avonds prima kunt vertoeven (er is fraai ingebouwde spotverlichting aanwezig). Deze kamer is ook uitgerust met een vaste ethernet-aansluiting, waardoor je ook op de tweede verdieping ook gemakkelijk razendsnel en zeer stabiel internet ter beschikking hebt, zeer handig voor thuiswerkers. De andere slaapkamer is ook een heerlijke ruimte, waarbij de grote raampartijen zorgen voor veel lichtinval.
ALGEMEEN
De woning is van het bouwjaar 1998 en is volledig geïsoleerd. De woning is energiezuinig (energielabel B) en zou d.m.v. bijvoorbeeld zonnepanelen en/of een warmtepomp zelfs nog duurzamer gemaakt kunnen worden.
LIGGING
De woning ligt op een leuke, rustige en kindvriendelijke plek in Nieuwland (Waterkwartier), op loopafstand van openbaar vervoer (3 minuten lopen naar de dichtstbijzijnde bushalte), winkelcentrum de Nieuwe Hof (2 minuten fietsen) lopen) en het iconische speeltuin ‘De Draak’. De snelweg (A1/A28) bereik je met twee minuten rijden en vanuit dit centrale punt in het land ben je zo in bijv. Amsterdam, Utrecht, Schiphol. Almere, Lelystad of Zwolle. Openbaar vervoer? Met de bus ben je in zo’n 15-20 minuten op Amersfoort Centraal Station. Fietsen naar Amersfoort Schothorst kost je ongeveer een kwartiertje.
DE VERKOPERS
Deze woning is bijna 10 jaar een hele prettige plek geweest voor ons, met zeer veel mooie herinneringen. Zo zijn bijvoorbeeld vier van onze kinderen in dit huis geboren. Wij staan nu echter aan de vooravond van een nieuw hoofdstuk in ons leven en verhuizen binnenkort naar Zuid-Holland. Wij hopen dat de volgende bewoners met minstens net zo veel plezier zullen genieten van deze prachtige woning en omgeving.
Is dit jouw (nieuwe) droomhuis? Neem dan snel contact op om een afspraak voor bezichtiging in te plannen! Dit zou al heel snel jouw nieuwe woning kunnen worden.
Kenmerken
Overdracht
- Vraagprijs
- € 569.000,- k.k.
- Status
- beschikbaar
- Aanvaarding
- direct
Bouw
- Type
- Woonhuis
- Soort
- eengezinswoning
- Type woonhuis
- hoekwoning
- Bouwjaar
- 1998
- Onderhoud binnen
- goed
- Onderhoud buiten
- goed
Tuin
- Type
- achtertuin, voortuin
- Hoofd tuin
- achtertuin
- Ligging
- zuid
- Oppervlakte
- 56 m²
Woonhuis
- Kamers
- 6
- Slaapkamers
- 5
- Verdiepingen
- 3
- Woonopp.
- 144 m²
- Inhoud
- 530 m³
- Perceelopp.
- 167 m²
- Ligging
- in woonwijk
Energie
- Energie label
- B
- Isolatie
- volledig geïsoleerd
- Verwarming
- c.v.-ketel
Garage
- Type
- geen garage
Berging
- Type
- vrijstaand hout
- Voorzieningen
- voorzien van elektra
Foto's
Neem contact met ons op
Bekijk de actuele rentetarieven en de maandlasten voor deze woning
Een hypotheekadviseur vinden?
Klik hier

















































