
Van Bruggen Leeuwarden
058 - 212 1868
Wilt u weten of u deze woning kunt betalen?
Kan ik deze woning kopen?
Benieuwd naar de huidige hypotheekrentes?
Bekijk actuele hypotheek rente
Omschrijving
Ruime en lichte gezinswoning met 5 slaapkamers in geliefde woonwijk Westeinde!
In de zeer gewilde en kindvriendelijke woonwijk Westeinde, nabij de Haak om Leeuwarden, staat deze verrassend ruime en goed ingedeelde gezinswoning. Met maar liefst vijf slaapkamers, met een kunststof schuifpui naar een zonnige achtertuin op het westen én een praktische carport met stenen berging aan de voorzijde, is dit de ideale woning voor gezinnen die ruimte en comfort zoeken.
De woning is gelegen op 163 m² eigen grond en beschikt over energielabel C. Daarnaast is de woning volledig voorzien van isolerende beglazing, wat bijdraagt aan een prettig woonklimaat, schilderwerk buitenom is perfect.
Indeling
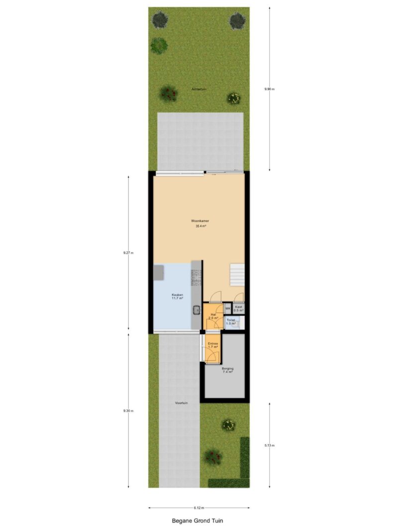
Begane grond: Via de entree/hal met meterkast en toilet kom je in de ruime, tuingerichte woonkamer. Dankzij de grote raampartijen is deze heerlijk licht. De woonkamer is voorzien van een laminaatvloer en heeft een directe toegang tot de achtertuin via de tuindeur. De open keuken is functioneel ingericht en voorzien van onder andere een vaatwasser en oven.
De achtertuin is grotendeels betegeld, onderhoudsvriendelijk en gunstig gelegen op het westen, waardoor je hier volop kunt genieten van de middag- en avondzon.
Aan de voorzijde van de woning bevinden zich de stenen berging en de carport.
Eerste verdieping: Overloop met toegang tot drie ruime slaapkamers en een complete badkamer, uitgerust met een ligbad, douchecabine met stoomfunctie, whirlpool, regendouche met massagestanden en toilet.
Tweede verdieping: Via een vaste trap bereikbare ruime zolderverdieping met een overloop, veel bergruimte, een was-/cv-ruimte en mechanische ventilatie. Daarnaast bevinden zich hier nog twee royale slaapkamers aan de achterzijde van de woning, waarvan één met toegang tot een balkon en een slaapzolder.
Bijzonderheden:
-
Royale en lichte woning
-
Maar liefst 5 slaapkamers
-
Gelegen op 163 m² eigen grond
-
Zonnige tuin op het westen (avondzon!)
-
Volledig voorzien van isolerende beglazing
-
Verwarming en warm water via CV-combiketel (2022)
-
Kindvriendelijke en populaire woonwijk
Kortom: een ideale gezinswoning met volop ruimte, gelegen op een fijne locatie!
Kenmerken
Overdracht
- Vraagprijs
- € 340.000,- k.k.
- Status
- beschikbaar
- Aanvaarding
- in overleg
Bouw
- Type
- Woonhuis
- Soort
- eengezinswoning
- Type woonhuis
- tussenwoning
- Bouwjaar
- 1971-1980
- Onderhoud binnen
- goed
- Onderhoud buiten
- redelijk, goed
Tuin
- Type
- achtertuin
- Hoofd tuin
- achtertuin
- Ligging
- west
- Oppervlakte
- 41 m²
Woonhuis
- Kamers
- 8
- Slaapkamers
- 5
- Verdiepingen
- 3
- Woonopp.
- 148 m²
- Inhoud
- 502 m³
- Perceelopp.
- 163 m²
- Ligging
- in woonwijk
Energie
- Energie label
- C
- Isolatie
- dakisolatie
- Verwarming
- c.v.-ketel
Garage
- Type
- carport
Berging
- Type
- aangebouwd steen
- Voorzieningen
- voorzien van elektra
Foto's
Plattegronden
Kaart
Neem contact met ons op
Bekijk de actuele rentetarieven en de maandlasten voor deze woning
Een hypotheekadviseur vinden?
Klik hier








































