
Tulp Makelaars Utrecht
hgerpug#ghycznxrynnef.ay
030-7531080
Wilt u weten of u deze woning kunt betalen?
Kan ik deze woning kopen?
Benieuwd naar de huidige hypotheekrentes?
Bekijk actuele hypotheek rente
Omschrijving
Sfeervol wonen in het historische Buren
Aan de rustige Ridder Alartlaan 50 in het charmante stadje Buren ligt deze fijne woning op een prettige woonlocatie. Een heerlijke plek voor wie comfortabel wil wonen in een groene en gemoedelijke omgeving, met alle dagelijkse voorzieningen binnen handbereik.
De woning beschikt over een praktische indeling en biedt volop mogelijkheden om het geheel naar eigen smaak in te richten. Dankzij de rustige ligging en het prettige woonklimaat is dit een ideale woning voor starters, gezinnen of doorstromers die op zoek zijn naar ruimte en wooncomfort. Duurzaam en comfortabel wonen! De woning is voorzien van een airco-unit (2025) waarmee je zowel kunt koelen als verwarmen. Daarnaast zijn er 16 zonnepanelen met 16 optimizers geplaatst in 2021. In de badkamer geniet je van elektrische vloerverwarming (2021) en voor efficiënte verwarming is er een cv-ketel in combinatie met een hybride warmtepomp. Extra genieten? Dat kan het hele jaar door in de overdekte veranda!
Buren staat bekend om zijn historische karakter, gezellige centrum en fraaie omgeving. Scholen, winkels, sportvoorzieningen en uitvalswegen richting onder andere Tiel, Culemborg en de A15 zijn goed bereikbaar. Daarnaast nodigt de omgeving uit tot wandelen, fietsen en genieten van het buitenleven. (Stad/woonplaats) Buren (kern): heeft ca. 2.580 inwoners en de Gemeente Buren (totaal): 27.968 inwoners.
Pluspunten op een rij:
Gelegen in een rustige en geliefde woonstraat
Prettige woonomgeving met veel groen
Historisch stadje Buren met voorzieningen nabij
Goede bereikbaarheid richting omliggende plaatsen
Kortom: een woning op een fijne plek in één van de meest sfeervolle plaatsen van de regio. Zeker een bezichtiging waard!
Pleasant Home in the Charming Historic Town of Buren
Located in a quiet residential street, this comfortable home at Ridder Alartlaan 50 offers a pleasant living environment in the historic town of Buren. The property features a practical layout and provides plenty of opportunities to create a home that suits your personal style.Sustainable and comfortable living! The property is equipped with an air conditioning unit (2025) that can both cool and heat. In addition, 16 solar panels with optimizers were installed in 2021. The bathroom features electric underfloor heating (2021), and the home has a central heating boiler combined with a hybrid heat pump for efficient heating. Finally, you can enjoy the covered veranda all year round!
Buren is known for its charming character, historic center and green surroundings. Daily amenities, schools and sports facilities are nearby, while surrounding cities such as Tiel and Culemborg are easily accessible by car.
An attractive home in a peaceful location, ideal for those looking for comfortable living in a charming Dutch town. (Town/locality) Buren (town centre): has approximately 2,580 inhabitants, and the Municipality of Buren (total): has 27,968 inhabitants.
Kenmerken
Overdracht
- Vraagprijs
- € 429.500,- k.k.
- Status
- Onder bod
- Aanvaarding
- in overleg
Bouw
- Type
- Woonhuis
- Soort
- eengezinswoning
- Type woonhuis
- hoekwoning
- Bouwjaar
- 1973
- Onderhoud binnen
- goed
- Onderhoud buiten
- goed
Tuin
- Type
- achtertuin, voortuin, zonneterras
- Hoofd tuin
- achtertuin
- Ligging
- zuid, west
- Oppervlakte
- 69 m²
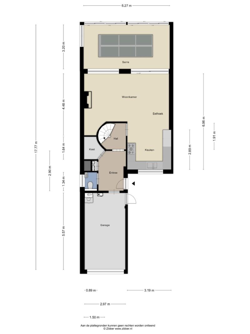
Woonhuis
- Kamers
- 5
- Slaapkamers
- 4
- Verdiepingen
- 2
- Woonopp.
- 99 m²
- Inhoud
- 409 m³
- Perceelopp.
- 239 m²
- Ligging
- in woonwijk, vrij uitzicht
Energie
- Energie label
- A
- Isolatie
- dakisolatie, dubbel glas, HR-glas
- Verwarming
- c.v.-ketel, warmtepomp
Garage
- Type
- aangebouwd hout
- Capaciteit
- 1 auto
Berging
- Type
- aangebouwd hout
Foto's
Plattegronden
Kaart
Neem contact met ons op
Bekijk de actuele rentetarieven en de maandlasten voor deze woning
Een hypotheekadviseur vinden?
Klik hier











































