
Makelaarsland Nederland B.V.
vasb#znxrynnefynaq.ay
(+31) 882 00 20 00
Wilt u weten of u deze woning kunt betalen?
Kan ik deze woning kopen?
Benieuwd naar de huidige hypotheekrentes?
Bekijk actuele hypotheek rente
Omschrijving
Een huis met ruimte, licht en mogelijkheden! Deze moderne hoekwoning met dakterras, garage en praktijkruimte biedt alles voor comfortabel wonen en werken — op een heerlijke plek met uitzicht op groen en water.
Op zoek naar een ruime, moderne woning met volop mogelijkheden? Deze uitgebouwde hoekwoning met afzonderlijke entree biedt de perfecte combinatie van wooncomfort, licht en flexibiliteit — ideaal voor een praktijk aan huis of dubbele bewoning.
De woning is gelegen op een fraaie locatie met vrij uitzicht aan twee zijden over groen en water. In de directe omgeving vind je diverse scholen, winkels, sportfaciliteiten en een winkelcentrum — alles binnen handbereik.
De achtertuin ligt op het zuidoosten en beschikt over een houten berging en een garage.
De woning is gebouwd in 1995 en opgeleverd in 1996, met een perceeloppervlakte van 205 m² en een woonoppervlakte van 168 m².
Pluspunten van deze woning:
1/Grote multifunctionele ruimte op de begane grond — ideaal als praktijkruimte of zelfstandige woonunit
2/Ruim dakterras (ca. 20 m²) op de eerste verdieping met veel privacy
3/Kunststof kozijnen en deur
4/Automatisch zonnescherm bij het balkon
5/Airconditioning aanwezig
6/Lichte eiken laminaatvloer door de gehele woning
Indeling
Begane grond:
Voortuin met aparte entree, hal met toilet en douche, bergkast met wasmachineaansluiting, slaapkamer/werkkamer of praktijkruimte met volledig ingerichte open keuken en kastenwand (totaal ca. 70 m²). Vanuit deze ruimte toegang tot de tuin (ca. 57 m²).
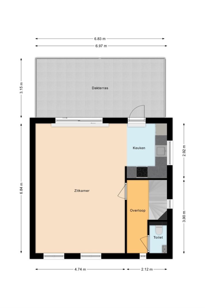
Eerste verdieping: (totaal ca. 50 m²).
Overloop met toilet, zeer lichte woonkamer met schuifpui en luxe open keuken Vanuit de woonkamer stap je direct het ruime dakterras op.
Tweede verdieping: (totaal ca. 50 m²)
Drie ruime slaapkamers en een moderne badkamer met douche, toilet, dubbele wastafel en wasmachineruimte.
Kortom:
Een moderne en instapklare woning met verrassend veel ruimte, praktische indeling en volop mogelijkheden. Perfect voor gezinnen of wie wonen en werken graag combineert! (Huis nr 125 +123).
Kenmerken
Overdracht
- Vraagprijs
- € 700.000,- k.k.
- Status
- Verkocht onder voorbehoud
- Aanvaarding
- in overleg
Bouw
- Type
- Woonhuis
- Soort
- herenhuis
- Type woonhuis
- hoekwoning
- Bouwjaar
- 1995
- Onderhoud binnen
- goed
- Onderhoud buiten
- goed
Tuin
- Type
- achtertuin, voortuin, zijtuin, zonneterras
- Hoofd tuin
- achtertuin
- Ligging
- oost
- Oppervlakte
- 57 m²
Woonhuis
- Kamers
- 6
- Slaapkamers
- 4
- Verdiepingen
- 3
- Woonopp.
- 168 m²
- Inhoud
- 559 m³
- Perceelopp.
- 205 m²
- Ligging
- in woonwijk, open ligging, vrij uitzicht
Energie
- Energie label
- A
- Isolatie
- dakisolatie, dubbel glas, HR-glas, muurisolatie, vloerisolatie
- Verwarming
- stadsverwarming
Garage
- Type
- vrijstaand hout
- Capaciteit
- 1 auto
Berging
- Type
- vrijstaand hout
- Voorzieningen
- voorzien van elektra
Foto's
Neem contact met ons op
Bekijk de actuele rentetarieven en de maandlasten voor deze woning
Een hypotheekadviseur vinden?
Klik hier




































































