
Klaverbladmakelaars
vasb#xynireoynqznxrynnef.ay
Wilt u weten of u deze woning kunt betalen?
Kan ik deze woning kopen?
Benieuwd naar de huidige hypotheekrentes?
Bekijk actuele hypotheek rente
Omschrijving
Ruime tussenwoning in Sumar. Daar is er weer eentje, op een heerlijke plek en een ruime gezinswoning in een hecht dorp.
Sumar ligt ten zuiden van Burgum en op ca. 20 minuten van Leeuwarden.
* Ruime tussenwoning ca. 123 m2 woonoppervlakte
* 4 Slaapkamers
* 8 Zonnepanelen 2022
* Energielabel C maar dat was zonder de panelen
* Schilderwerk buitenom 2026
* Kunststof schuur ca.17 m2 2025
* CV ketel 2020
De indeling is als volgt:
Entree, hal met toilet en gemoderniseerde meterkast. De woonkamer aan de voorzijde waar morgens het zonnetje naar binnenglipt is ruim en ligt. Voor de woning is een speelveld/groenstrook waardoor je zeker geen directe inkijk hebt van overburen.
De eetkamer en woonkamer zijn redelijk van elkaar gescheiden waardoor je bijna een leefkeuken hebt. Er is een kunststof schuifpui naar de tuin in de eetkamer. De keuken is netjes, en voorzien van inbouwapparatuur.
Achter de keuken een ruime bijkeuken, die ook nog eens een zolder ruimte heeft dit is echt een sterk punt van de woning.
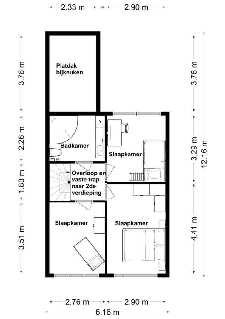
Via de trap naar de verdieping; hier zijn 3 ruime slaapkamer en een badkamer. De badkamer heeft een ruim hoekbad met douche, wastafel met meubel en een toilet. Een vaste trap naar de 2de verdieping met nog een een hele ruime slaapkamer. Hier zijn 3 dakramen waardoor het licht en prima vertoeven is. Een vaste wastafel en veel bergruimte in de knieschotten maakt de kamer speels en misschien wel een hele leuke "tienerkamer" wellicht.
De CV ketel uit 2020 is netjes in een kast geplaatst.
Ben je nieuwsgierig geworden? Bel of mail dan voor een bezichtiging. Meek it possible.
Kenmerken
Overdracht
- Vraagprijs
- € 280.000,- k.k.
- Status
- Verkocht onder voorbehoud
- Aanvaarding
- in overleg
Bouw
- Type
- Woonhuis
- Soort
- eengezinswoning
- Type woonhuis
- tussenwoning
- Bouwjaar
- 1978
- Onderhoud binnen
- goed
- Onderhoud buiten
- goed
Tuin
- Type
- achtertuin, voortuin
- Hoofd tuin
- achtertuin
- Ligging
- zuid, west
- Oppervlakte
- 78 m²
Woonhuis
- Kamers
- 5
- Slaapkamers
- 4
- Verdiepingen
- 3
- Woonopp.
- 123 m²
- Inhoud
- 375 m³
- Perceelopp.
- 181 m²
- Ligging
- aan rustige weg, vrij uitzicht
Energie
- Energie label
- C
- Isolatie
- HR-glas, dakisolatie, dubbel glas, muurisolatie
- Verwarming
- c.v.-ketel
Garage
- Type
- geen garage
Berging
- Type
- vrijstaand kunststof
- Voorzieningen
- voorzien van elektra
- Isolatie
- volledig geïsoleerd
Foto's
Kaart
Neem contact met ons op
Bekijk de actuele rentetarieven en de maandlasten voor deze woning
Een hypotheekadviseur vinden?
Klik hier


































