
Klaverbladmakelaars
vasb#xynireoynqznxrynnef.ay
Wilt u weten of u deze woning kunt betalen?
Kan ik deze woning kopen?
Benieuwd naar de huidige hypotheekrentes?
Bekijk actuele hypotheek rente
Omschrijving
Soms, heel soms komt zoiets moois te koop. Dit is gewoon genieten van de Rust Ruimte en Ready (de bekende 3 r'en in een andere vorm).
Op een kavel van 2440 m² eigen grond ligt deze tot in de puntjes verzorgde woonboerderij gebouwd in 2007.
Maar dat is niet alles, je wordt ook eigenaar van een zwembad, dubbele carport met garage erachter met aansluitend een ruime overkapping. En aan de andere zijde van de boerderij een jacuzzi die aansluit op de badkamer.
En die lijn van luxe aan de buiten zijde wordt binnen geheel doorgezet. Prachtige keuken, 2 ruime volledig ingerichte badkamers, 5 slaapkamers en een fantastische woonkamer op de tuin gericht (openslaande deuren) met een ruime eetkamer en uitgebreide keuken die van alle gemakken en inbouwapparatuur is voorzien.
Ik ga niet meer vertellen, je moet gewoon maar komen kijken, genieten en beleven. Er is veel te zien dus we gaan bezichtigingen inplannen van ca. 1 1/2 uur.
* Gebouwd in 2007
* Energielabel A
* Verwarmd zwembad
* Jacuzzi
* 2 Luxe badkamers waarvan 1 op begane grond
* 5 Slaapkamer waarvan 2 op begane grond (geen vloerverwarming)
* Luxe keuken 2016
* Dubbele carport
* Overkapping met houtkachel
* Tuin om in te verdwalen
* Begane grond voorzien van vloerverwarming
* Kom gewoon lekker kijken en beleven
De indeling is als volgt;
Normaal komen we in een dorp binnen via de achterdeur, maar hier gaan we toch via de entree aan de andere kant van de boerderij. Alleen dit al is een beleving. Wat een entree. Vide, Trappartij. Licht. Ruimte.
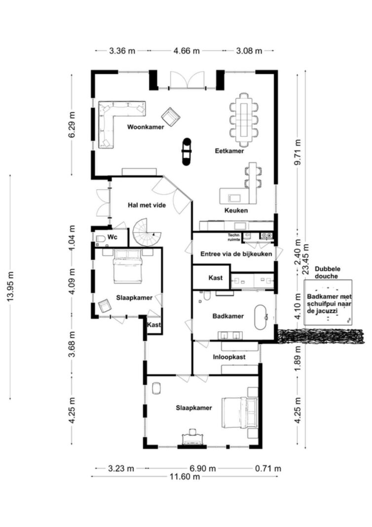
Vanuit de hal kun je naar vrijwel alle vertrekken op de begane grond. De complete begane grond heeft ca. 214 m² woonoppervlakte en voorzien van vloerverwarming (op de 2 slaapkamer begane grond na). Ik ga niet hier benoemen wat er allemaal voor specifieke apparatuur in de keuken en badkamers aanwezig is. Dat gaan jullie bij een bezichtiging allemaal horen en zien. Maar neem van mij aan dat het indrukwekkend en passend bij het geheel is.
Eerst naar de woonkamer keuken (2016) en eetkamer. Hier heb je uitzicht over je erf, prachtig ook nu in de herfstkleuren. Een vijver, zwembad en gewoon een compleet aangelegde tuin heb je tot je beschikking. De openslaande deuren naar de tuin zitten fraai in het midden van de imposante achtergevel.
De bijkeuken met achteringang heeft veel bergruimte en hier is de cv-ketel netjes weggewerkt in de kasten. Er is een pantry (mooi woord voor voorraadkast).
Er zijn 2 slaapkamers op de begane grond (17 en 29 m²). Een volledig ingerichte badkamer met bad, dubbele douche, bergmeubel, toilet en dubbele wastafel. Tussen de grote slaapkamer en badkamer zit een inloopkast van ca. 2 meter breed bij 4,50 meter diep.
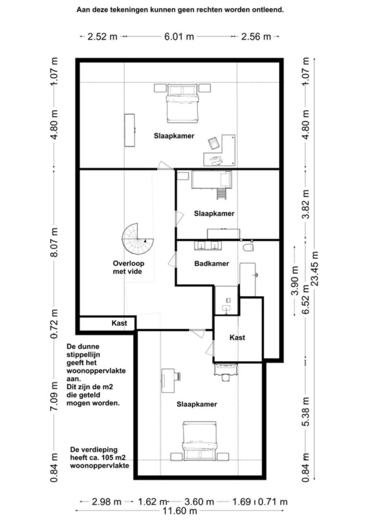
Terug naar de hal met toilet en prachtige trapopgang naar de verdieping. De overloop met vide is echt een prachtig centraal punt in de woning. Hier zijn 3 slaapkamers van 29, 25 en 14 m². De badkamer is ruim en heeft een bad, inloopdouche (zonnedouche), dubbele wastafel en toilet. De woonoppervlakte op de verdieping is net zo groot als een normale gezinswoning, ca. 105 m². Op de overloop is nog een vlizotrap naar de bergzolder over de gehele lengte van de boerderij.
De tuin is ook een belevenis op zich. Wandelroute, ruimte voor kleinvee, kippen, konijnen noem maar op hier kan het allemaal.
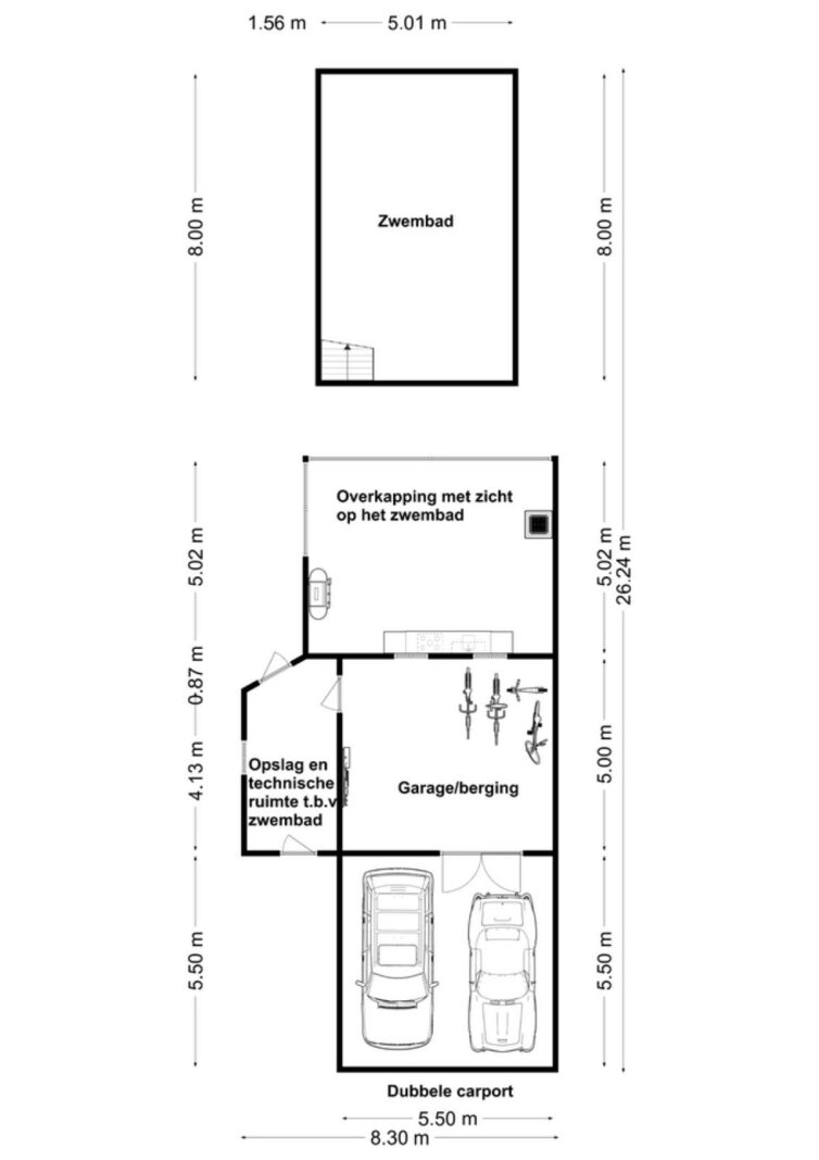
Zwembad van 8 bij 5 meter en 1,4 meter diep. Uiteraard d.m.v. een warmtepomp geheel verwarmd en een overkapping om alles warm en schoon te houden. Voor het zwembad een prachtige overkapping (bijna extra woonkamer/keuken) van ruim 35 m² met keukenblok en houtkachel erin. Wat een feest om van hieruit je zwembad in te duiken.
De auto of auto's kun je onder de carport parkeren, maar er is uiteraard ruimte om op de oprit te parkeren. Toegang tot je oprit heb je via een op afstand bedienbare poort. Achter de carport een garage/opslag ruimte van ca. 25 m².
Tronde is "buurt gemeenschap' nabij Elsloo. Elsloo ligt centraal Noord-Nederland op de grens met Friesland en Drenthe.
Assen op 30 min, Groningen 45 min, Leeuwarden 40 min, Zwolle 45 min autorijden. Tronde 13 ligt tegen het grote natuurgebied het Drents Friese Wild of ''Stobbepoel en de Schaopendobbe". Hier kun je een mooie wandeling maken met prachtige natuur, bos en heidegebied. Het wild loopt hier in het wild.
Ben je nieuwsgierig geworden? Bel of mail voor een bezichtiging afspraak, dit kan ook in het weekend. Meek it possible.
Kenmerken
Overdracht
- Vraagprijs
- € 930.000,- k.k.
- Status
- beschikbaar
- Aanvaarding
- in overleg
Bouw
- Type
- Woonhuis
- Soort
- woonboerderij
- Type woonhuis
- vrijstaande woning
- Bouwjaar
- 2006
- Onderhoud binnen
- goed, uitstekend
- Onderhoud buiten
- goed, uitstekend
Tuin
- Type
- tuin rondom
- Hoofd tuin
- tuin rondom
- Ligging
- noord, west
- Oppervlakte
- 1.238 m²
Woonhuis
- Kamers
- 6
- Slaapkamers
- 5
- Verdiepingen
- 3
- Woonopp.
- 319 m²
- Inhoud
- 1.140 m³
- Perceelopp.
- 2.440 m²
- Ligging
- in bosrijke omgeving, landelijk gelegen, open ligging, vrij uitzicht
Energie
- Energie label
- A
- Isolatie
- HR-glas, dakisolatie, muurisolatie, vloerisolatie, volledig geïsoleerd
- Verwarming
- c.v.-ketel, gashaard, vloerverwarming gedeeltelijk
Garage
- Type
- carport, garage met carport
- Capaciteit
- 4 autos
Berging
- Type
- vrijstaand hout
- Voorzieningen
- met vliering, voorzien van elektra
Foto's
Kaart
Neem contact met ons op
Bekijk de actuele rentetarieven en de maandlasten voor deze woning
Een hypotheekadviseur vinden?
Klik hier


























































