
Van Bruggen Utrecht
znxrynneqvw-hgerpug#inaoehttra.ay
030 - 877 1742
Wilt u weten of u deze woning kunt betalen?
Kan ik deze woning kopen?
Benieuwd naar de huidige hypotheekrentes?
Bekijk actuele hypotheek rente
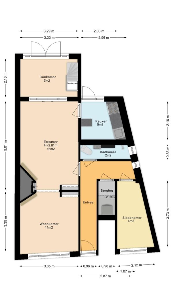
Omschrijving
Wonen in het groen, midden in de stad - Van Marumstraat 5
Treed binnen bij de Van Marumstraat 5: een groene oase in het levendige en geliefde Tuinwijk. Zodra je deze woning binnenstapt, ervaar je direct een gevoel van rust en comfort - een plek waar je je moeiteloos terugtrekt uit de dynamiek van de stad, terwijl het Griftpark en de binnenstad zich op steenworp afstand bevinden.
Dit is een huis waar licht, comfort en sfeer op natuurlijke wijze samenkomen. Waar je de dag begint met een kop koffie in de ochtendzon, 's middags een wandeling maakt door het park en 's avonds uitgebreid tafelt met vrienden in de tuin of je terugtrekt in de serre met een goed boek. Of je nu kiest voor zon of schaduw - deze tuin biedt het allebei, de hele dag door.
Leven in Tuinwijk
De woning ligt in Tuinwijk, een van de meest gewilde buurten van Utrecht. Hier woon je rustig en groen, met de stad altijd binnen handbereik. Om de hoek vind je geliefde koffietentjes en restaurants zoals Tijm, en voor ontspanning loop je zo naar het Griftpark. Ook de karaktervolle wijken Wittevrouwen en de Vogelenbuurt liggen op loopafstand.
De combinatie van stedelijke levendigheid, groen en een gezellige buurt maakt dit een plek waar je met gemak jarenlang met plezier woont.
Indeling en sfeer
Bij binnenkomst word je verwelkomd in de hal, die toegang geeft tot verschillende ruimtes. Aan de voorzijde bevindt zich een kamer die perfect is als werkplek, logeerkamer of hobbyruimte - ideaal voor wie thuis werkt.
De woning ontvouwt zich vervolgens in een speels ingedeelde leefruimte, verdeeld over drie met elkaar verbonden delen die samen een verrassend ruimtelijk geheel vormen. De karakteristieke en-suite deuren geven niet alleen charme, maar bieden ook flexibiliteit: open en licht waar gewenst, intiem en beschut wanneer dat past.
Het hart van de woning is de centrale eetkamer, die in verbinding staat met zowel de voor- als achterzijde. Hier valt het daglicht rijkelijk van beide kanten naar binnen en lopen de ruimtes op natuurlijke wijze in elkaar over.
Aan de achterzijde bevindt zich naast de eetkamer, de serre: een fijne plek om je even terug te trekken, met uitzicht op het groen. De serre heeft openslaande deuren naar de tuin, waardoor op zonnige dagen de grens tussen binnen en buiten vervaagt. Dankzij het zorgvuldig aangelegde en volwassen groen ervaar je hier veel privacy - een beschutte plek waar je nauwelijks iets merkt van de omgeving. Ook in de winter blijft het uitzicht groen en sfeervol.
De keuken is strak vormgegeven en voorzien van hoogwaardige Smeg-apparatuur. Met directe toegang tot de tuin vormt dit de perfecte setting voor lange zomeravonden en ontspannen diners buiten.
Achter in de tuin bevindt zich een ruime, praktische schuur met volop bergruimte. Ideaal voor de klusser, fietsliefhebber of wie simpelweg extra opbergruimte waardeert. Ook in de woning zelf is aan opberggemak gedacht, met diverse kasten die voor verrassend veel bergruimte zorgen.
Souterrain
Via de trap bereik je het souterrain, waar zich de tweede slaapkamer bevindt. Een rustige, beschutte ruimte die zich uitstekend leent als slaapkamer, logeerkamer of werkruimte. In de zomer blijft het hier aangenaam koel, wat zorgt voor een comfortabel en constant binnenklimaat.
Praktisch en comfortabel
De badkamer is modern en stijlvol afgewerkt met beton ciré en voorzien van een inloopdouche, wastafel en toilet. In de gang bevindt zich een praktische bergkast met wasmachineaansluiting.
Tuin - zon en schaduw de hele dag
De tuin is zonder twijfel een van de grote kwaliteiten van deze woning. Door de gunstige ligging geniet je hier de hele dag van een mooie afwisseling tussen zon en schaduw. Of je nu wilt ontspannen in de zon, dineren in het avondlicht of verkoeling zoekt op warme dagen - hier kan het allemaal.
Waarom je hier wilt wonen
Dit is geen standaard benedenwoning, maar een huis met karakter en allure. Een plek waar rust, licht en ruimte samenkomen, en waar binnen en buiten naadloos in elkaar overlopen.
Een woning voor wie bewust kiest voor comfortabel en stijlvol wonen, op een van de fijnste plekken van Utrecht.
Kenmerken
- Benedenwoning van 70 m²
- Speelse en praktische indeling
- Gelegen in de populaire wijk Tuinwijk (Noordoost Utrecht)
- Twee slaapkamers (een aan de voorzijde en een in souterrain)
- Woon-/eetkamer verdeeld in drie delen met tussendeuren
- Middelste woonkamer met toegang tot de keuken
- Gesloten keuken met Smeg apparatuur
- Badkamer met toilet, wastafel en inloopdouche
- Openslaande deuren naar de tuin
- Tuin op het oosten met schuur
- Energielabel
- Centrale ligging dichtbij Griftpark en het centrum
- Goede bereikbaarheid van voorzieningen en uitvalswegen
De volgende clausules zullen in de koopakte worden opgenomen:
- Asbestclausule (gezien de leeftijd van de woning is het mogelijk dat er asbest in zit)
- Ouderdomsclausule
Kenmerken
Overdracht
- Vraagprijs
- € 525.000,- k.k.
- Status
- beschikbaar
- Aanvaarding
- in overleg
Bouw
- Type
- Appartement
- Soort
- benedenwoning
- Bouwjaar
- 1929
- Onderhoud binnen
- goed
- Onderhoud buiten
- goed
Tuin
- Type
- achtertuin
- Hoofd tuin
- achtertuin
- Ligging
- oost
- Oppervlakte
- 32 m²
Appartement
- Kamers
- 4
- Slaapkamers
- 2
- Verdiepingen
- 2
- Woonopp.
- 70 m²
- Inhoud
- 276 m³
- Perceelopp.
- 107 m²
- Ligging
- aan rustige weg, in centrum, in woonwijk
Energie
- Energie label
- D
- Verwarming
- c.v.-ketel
Garage
- Type
- geen garage
Berging
- Type
- vrijstaand hout
- Isolatie
- geen isolatie
Foto's
Plattegronden
Kaart
Neem contact met ons op
Bekijk de actuele rentetarieven en de maandlasten voor deze woning
Een hypotheekadviseur vinden?
Klik hier



































































