
Van Bruggen Zwolle
038-429 0917
Wilt u weten of u deze woning kunt betalen?
Kan ik deze woning kopen?
Benieuwd naar de huidige hypotheekrentes?
Bekijk actuele hypotheek rente
Omschrijving
Ruimte, licht en comfort in een modern jasje
De Vivaldistraat 72 is zo'n woning waar alles klopt. De moderne uitstraling, de uitgebouwde woonkamer, het fijne licht dat overal binnenvalt _ en dat allemaal in een rustige straat met alle voorzieningen binnen handbereik. Met een woonoppervlakte van 102 m², drie volwaardige slaapkamers en een extra werk-/kastenkamer is dit een heerlijke plek voor wie praktisch en comfortabel wil wonen. Dankzij de kunststof kozijnen, de ruime dakkapel op zolder en het keurige onderhoud kun je hier zonder grote verbouwing intrekken. Voeg daar de zonnepanelen, vernieuwde cv-ketel en gunstige ligging bij, en je begrijpt: dit huis is er een die z'n belofte waarmaakt.
De buurt
De woning ligt in een rustige, groene straat in de wijk Holtenbroek, waar kinderen veilig kunnen spelen en buren elkaar nog groeten. Binnen vijf minuten rijd je de A28 op en met tien minuten fietsen sta je in de Zwolse binnenstad. Voor dagelijkse boodschappen ligt het winkelcentrum om de hoek en wandel of fiets je liever? De dijk en het Westerveldse Bos liggen vlakbij _ ideaal voor een ommetje na het werk of een ochtendrondje met de hond.
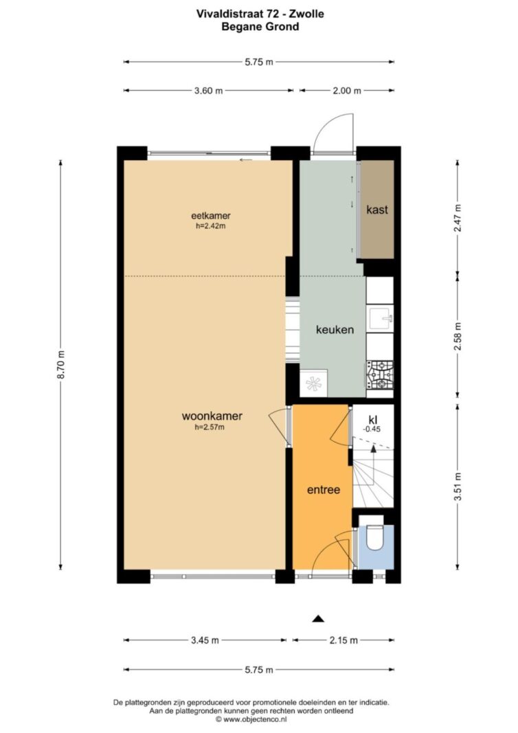
Begane grond
Je stapt binnen in een nette hal met toiletruimte, trapopgang en handige trapkast. Vervolgens kom je in de uitgebouwde woonkamer, waar het meteen opvalt hoe ruim en licht het is, mede door de grote raampartij aan de voorzijde. De schuifpui aan de achterzijde zorgt voor een open verbinding met de tuin en laat ook veel daglicht binnen. Aan de voorzijde is ruimte voor een gezellige zithoek, terwijl je aan de achterkant comfortabel kunt dineren met uitzicht op de tuin. De halfopen keuken is praktisch ingedeeld met een recht keukenmeubel, en uitgerust met diverse inbouwapparatuur, waaronder een gaskookplaat, afzuigkap en oven. De grote bergkast in de uitbouw biedt verrassend veel opbergruimte.
Eerste verdieping
Op de eerste verdieping vind je twee ruime slaapkamers, elk met kunststof kozijnen en een prettige lichtinval. De hoofdslaapkamer aan de achterzijde heeft een rustige sfeer en biedt uitzicht op de tuin. De tweede kamer aan de voorzijde is perfect als kinder- of logeerkamer, en daarnaast is er een extra kamer op deze verdieping aanwezig; ideaal als werk- en kastenkamer. De badkamer oogt fris, is volledig betegeld en voorzien van een inloop regendouche, wastafelmeubel en designradiator.
Tweede verdieping
De tweede verdieping is een volwaardige woonlaag dankzij de brede dakkapel (geplaatst in 2019) over de gehele achterzijde. De royale zolderkamer is voorzien van een eigen wastafel en leent zich goed als derde volwaardige slaapkamer. Op de overloop is de cv-installatie gesitueerd, en ook vind je hier handige bergruimte achter de knieschotten.
Buitenruimte
De achtertuin is strak aangelegd en volledig bestraat _ onderhoudsarm en ideaal voor lange zomeravonden. Dankzij de gunstige ligging geniet je van zon én privacy. Achter in de tuin staat een stenen berging met ruimte voor fietsen en tuingereedschap. Via de achterom loop je direct naar een ruim parkeerterrein, waar altijd plek is voor de auto.
Bijzonderheden
-Moderne tussenwoning
-Lichte afwerking
-Uitgebouwde woonkamer met schuifpui
-Volledig voorzien van kunststof kozijnen
-Dakkapel over de gehele breedte (2019)
-Nieuwe cv-ketel (december 2023)
-Zonnepanelen aan voor- en achterzijde (mei 2024)
-Vernieuwde meterkast (mei 2020)
-Schoorsteenrenovatie (2025)
-Drie slaapkamers, waaronder één royale zolderkamer
-Extra kamer; perfect geschikt als werk- en kastenkamer
-Rustige straat nabij dijk en Westerveldse Bos
-Winkelcentrum en binnenstad op korte afstand
Afsluiting
Deze woning aan de Vivaldistraat 72 combineert ruimte, licht en duurzaamheid op een manier die je zelden ziet. Alles is netjes onderhouden en klaar voor nieuwe bewoners die hier hun eigen thuis van willen maken. Kom het zelf ervaren _ de sfeer, de ruimte en het comfort voel je pas echt als je binnenstapt. Maak snel een afspraak voor een bezichtiging, want dit is er een die je niet wilt missen.
Kenmerken
Overdracht
- Vraagprijs
- € 375.000,- k.k.
- Status
- Onder bod
- Aanvaarding
- in overleg
Bouw
- Type
- Woonhuis
- Soort
- eengezinswoning
- Type woonhuis
- tussenwoning
- Bouwjaar
- 1964
- Onderhoud binnen
- goed
- Onderhoud buiten
- goed
Tuin
- Type
- achtertuin, voortuin
- Hoofd tuin
- achtertuin
- Ligging
- oost
- Oppervlakte
- 46 m²
Woonhuis
- Kamers
- 5
- Slaapkamers
- 4
- Verdiepingen
- 3
- Woonopp.
- 102 m²
- Inhoud
- 349 m³
- Perceelopp.
- 130 m²
- Ligging
- aan rustige weg, in woonwijk
Energie
- Energie label
- C
- Verwarming
- c.v.-ketel
Garage
- Type
- geen garage
Berging
- Type
- vrijstaand steen
- Isolatie
- dakisolatie, dubbel glas
Foto's
Plattegronden
Kaart
Neem contact met ons op
Bekijk de actuele rentetarieven en de maandlasten voor deze woning
Een hypotheekadviseur vinden?
Klik hier

































