
Faasse & Fermont makelaars te Goes
vasb#snnffr-srezbag.ay
0113-250555
Wilt u weten of u deze woning kunt betalen?
Kan ik deze woning kopen?
Benieuwd naar de huidige hypotheekrentes?
Bekijk actuele hypotheek rente
Omschrijving
Midden in het dynamische stadscentrum van Goes, ligt dit recent gerenoveerde appartement op de 1e en 2e etage van een karakteristiek pand. Een woning die direct een prettige indruk maakt door de lichte ruimtes, het open karakter en het fraaie uitzicht op de rustige vlasmarkt. Hier woon je letterlijk op loopafstand van winkels, horeca en voorzieningen, terwijl je thuis kunt genieten van rust en comfort.
Het appartement is verdeeld over twee woonlagen en biedt volop mogelijkheden. De basis is goed, de afwerking verzorgd en de indeling biedt ruimte om het geheel verder naar eigen wens te optimaliseren.
Indeling
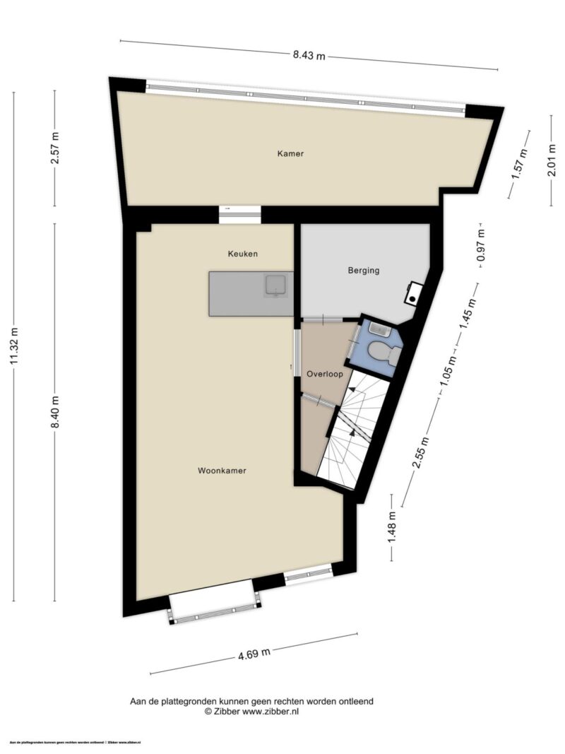
Eerste verdieping
Via de eigen entree op de begane grond kom je met de trap op de overloop. De lichte voorkamer is prima geschikt als werk- of zitkamer. De ruime woonkamer vormt samen met de open keuken een prettig geheel, waarbij licht en ruimte centraal staan. De open keukenopstelling sluit mooi aan op de leefruimte en draagt bij aan het moderne woongevoel. Aan de achterkant is een royale slaapkamer van ca. 16m2. Daarnaast is er op deze verdieping een praktische berging met cv opstelling en witgoedaansluitingen en een toilet aanwezig.
Tweede verdieping
De tweede verdieping beschikt over een comfortabele slaapkamer met toegang tot het dakterras en een nette badkamer in goede staat. Daarnaast is er een tweede kamer die eveneens is voorzien van een keukenopstelling. Deze ruimte biedt diverse gebruiksmogelijkheden, bijvoorbeeld als extra woonruimte, studio, werkplek of logeerkamer. De zichtbare balken en de kapconstructie geven deze verdieping extra karakter.
Buitenruimte en uitzicht
Aan de achterzijde is een royaal dakterras van ca. 16m2 waar het heerlijk toeven is.
Bijzonderheden
-Gelegen in het centrum van Goes
-Recent gerenoveerd appartement
-Woonruimte verdeeld over twee verdiepingen
-Ruime woonkamer met open keuken
-Slaapkamer, badkamer en extra kamer met keuken op de tweede verdieping
-Praktische berging aanwezig
-Veel potentie en flexibel in te delen
-Fraai uitzicht over de Goese binnenstad
-Woonoppervlakte: circa 106 m²
Een woning met karakter, mogelijkheden en een toplocatie. Ideaal voor wie stedelijk wil wonen en tegelijkertijd ruimte zoekt om het appartement helemaal naar eigen smaak verder vorm te geven.
Onder de woonruimte bevindt zich een commerciële ruimte van ca. 60 m² met een eigen entree aan de straatzijde. Deze ruimte wordt eveneens te koop aangeboden en biedt de mogelijkheid deze samen te voegen met de bovenwoning. Heeft u ook interesse in de benedenruimte? Vraag dan naar de verkoopbrochure bij de makelaar.
Het is eventueel mogelijk deze woning te verhuren als 2 separate studio's.
Dus mogelijk ook interessant als belegging.
Kenmerken
Overdracht
- Vraagprijs
- € 295.000,- k.k.
- Status
- beschikbaar
- Aanvaarding
- in overleg
Bouw
- Type
- Appartement
- Soort
- bovenwoning
- Bouwjaar
- 1948
- Onderhoud binnen
- redelijk
- Onderhoud buiten
- redelijk
Appartement
- Kamers
- 4
- Slaapkamers
- 2
- Verdiepingen
- 2
- Woonopp.
- 106 m²
- Inhoud
- 349 m³
- Perceelopp.
- 72 m²
- Ligging
- beschutte ligging, in centrum
Energie
- Energie label
- D
- Isolatie
- dakisolatie, dubbel glas, muurisolatie, vloerisolatie, volledig geïsoleerd
- Verwarming
- c.v.-ketel
Garage
- Type
- geen garage
Foto's
Plattegronden
Kaart
Neem contact met ons op
Bekijk de actuele rentetarieven en de maandlasten voor deze woning
Een hypotheekadviseur vinden?
Klik hier





















