
ten Hag makelaars Deventer B.V.
qriragre#graunt.ay
0570-666999
Wilt u weten of u deze woning kunt betalen?
Kan ik deze woning kopen?
Benieuwd naar de huidige hypotheekrentes?
Bekijk actuele hypotheek rente
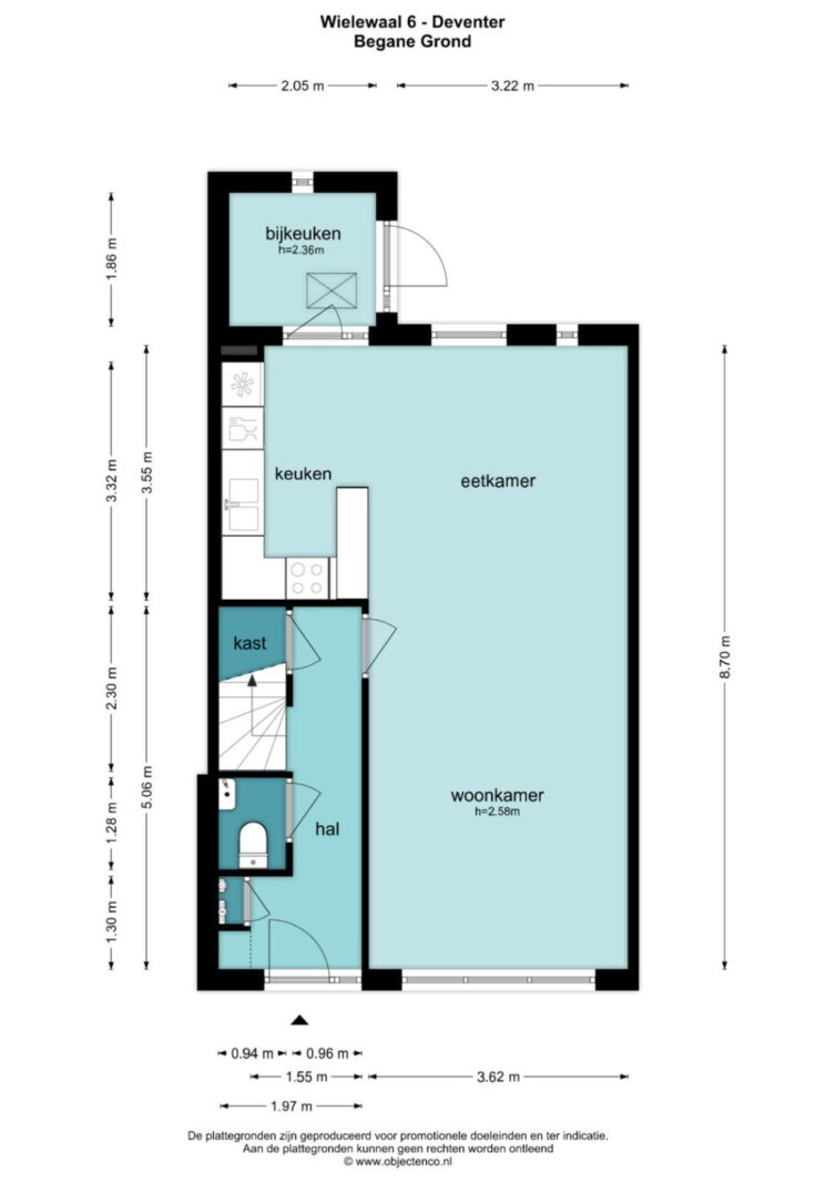
Omschrijving
Tussenwoning met vier slaapkamers, moderne badkamer en energielabel A++! 
Deze ruime tussenwoning is gelegen in de populaire woonwijk Groot Douwel en biedt alles wat je nodig hebt voor comfortabel en energiezuinig wonen.
Door de jaren heen is veel geïnvesteerd in duurzaamheid. Zo is de woning voorzien van extra isolatie, zonnepanelen en een hybride warmtepomp. Dankzij deze maatregelen beschikt de woning over energielabel A++.
De ligging is ideaal: op korte afstand bevinden zich winkelcentrum Colmschate voor de dagelijkse boodschappen, sport- en recreatiecentrum De Scheg, station Colmschate en diverse basisscholen. Bovendien fiets je binnen een kwartier naar het historische centrum van Deventer.
HIGHLIGHTS:
- Ruime woonkamer met open keuken 
- Moderne badkamer vernieuwd in 2023
- 3 slaapkamers op de 1e verdieping en 4e slaapkamer op 2e verdieping
- Achtertuin gelegen op het zuiden met berging en carport
- Voorzien van energielabel A++
Van dit huis is een eigen internetpagina beschikbaar. Als u de brochure downloadt komt u automatisch op deze pagina. Hier vindt u alle informatie van dit huis. 
Interesse in dit huis? Schakel direct uw eigen NVM aankoopmakelaar in.
Uw NVM aankoopmakelaar komt op voor uw belang en bespaart u tijd, geld en zorgen. Adressen van collega NVM kantoren vindt u op Funda.nl.
Aan deze objectinformatie kunnen geen rechten worden ontleend en deze informatie kan niet als aanbieding of offerte worden beschouwd. Indien u een aanbieding wenst, kan de makelaar deze, na goedkeuring door de opdrachtgever, op basis van specifieke gegevens verzorgen.
Kenmerken
Overdracht
- Vraagprijs
 - € 395.000,- k.k.
 - Status
 - beschikbaar
 - Aanvaarding
 - in overleg
 
Bouw
- Type
 - Woonhuis
 - Soort
 - eengezinswoning
 - Type woonhuis
 - tussenwoning
 - Bouwjaar
 - 1978
 - Onderhoud binnen
 - redelijk
 - Onderhoud buiten
 - goed
 
Tuin
- Type
 - achtertuin, voortuin
 - Hoofd tuin
 - achtertuin
 - Ligging
 - zuid
 - Oppervlakte
 - 44 m²
 
Woonhuis
- Kamers
 - 5
 - Slaapkamers
 - 4
 - Verdiepingen
 - 3
 - Woonopp.
 - 114 m²
 - Inhoud
 - 418 m³
 - Perceelopp.
 - 150 m²
 - Ligging
 - in woonwijk
 
Energie
- Energie label
 - A++
 - Isolatie
 - driedubbel glas, dubbel glas, vloerisolatie
 - Verwarming
 - c.v.-ketel, warmtepomp
 
Garage
- Type
 - carport
 
Berging
- Type
 - vrijstaand steen
 - Voorzieningen
 - voorzien van elektra
 
Foto's
Kaart
Neem contact met ons op
Bekijk de actuele rentetarieven en de maandlasten voor deze woning
Een hypotheekadviseur vinden?
Klik hier

















































