
ANTON Makelaardij
vasb#nagbaznxrynneqvw.ay
0320-220108
Wilt u weten of u deze woning kunt betalen?
Kan ik deze woning kopen?
Benieuwd naar de huidige hypotheekrentes?
Bekijk actuele hypotheek rente
Omschrijving
ANTON Makelaardij biedt aan: Wold 20-05, 8225 AV te Lelystad!
Alle informatie over deze woning kunt u vinden op: wold20-5.nl
Ruime, goed onderhouden geschakelde vrijstaande woning met garage, oprit en zonnige tuin nabij het centrum van Lelystad.
In een rustig en prettig straatje, op korte afstand van het centrum van Lelystad, staat deze goed onderhouden geschakelde vrijstaande woning. De woning onderscheidt zich doordat het de enige vrijstaande woning is in een straat die verder bestaat uit twee-onder-een-kapwoningen, een unieke kans voor wie nét dat beetje extra ruimte en privacy zoekt.
De woning beschikt over een klassieke en praktische U indeling met maar liefst vier volwaardige slaapkamers, waardoor er volop ruimte is voor een gezin, thuiswerken of hobby's. De keuken en badkamer zijn netjes onderhouden en meer dan functioneel.
Bij aankomst valt direct de ruime oprit op, met parkeergelegenheid voor maar liefst drie auto's op eigen terrein. Daarnaast beschikt de woning over een ruime garage, ideaal voor opslag, een werkruimte of het stallen van fietsen en een auto.
De achtertuin is een fijne plek om te ontspannen en grenst aan groen, wat zorgt voor extra privacy en een vrij uitzicht. Hier geniet je in alle rust van het buitenleven. Mocht u de achterkant willen uitbouwen dan is er reeds een heipaal aanwezig vanaf de bouw!
Op het gebied van duurzaamheid zit je hier uitstekend: de woning is voorzien van 16 zonnepanelen, gedeeltelijk kunststof kozijnen en een airco-installatie die zowel kan verwarmen als koelen in de woonkamer alsook in de slaapkamer. Dit alles draagt bij aan lage energielasten en resulteert in een gunstig energielabel A.
De bereikbaarheid is uitstekend met de A6 naar Almere en Amsterdam, en de N302 richting Harderwijk binnen enkele minuten bereikbaar. Wilt u snel in Amsterdam zijn? Geen probleem! Met de trein bent u binnen 35 minuten in het centrum van de hoofdstad, met vier intercityverbindingen per uur.
Kort samengevat:
-Geschakelde vrijstaande woning op een rustige locatie
-Vier slaapkamers
-Ruime garage en oprit voor 3 auto's
-Achtertuin grenzend aan groen
-Nette keuken en badkamer
-Gedeeltelijk kunststof kozijnen
-Airco (verwarmen en koelen)
-16 zonnepanelen
-Energielabel A
-Nabij centrum en voorzieningen
-Oplevering in overleg.
Een ideale woning voor wie rustig wil wonen met alle voorzieningen binnen handbereik! Voor een bezichtiging kunt u ons bellen, een aanvraag indienen via Funda of via de woningwebsite wold20-5.nl
Deze geschakelde vrijstaande woning wordt u aangeboden met een startprijs. Biedingen vanaf € 489.500,- k.k. zullen door de verkoper in behandeling worden genomen.
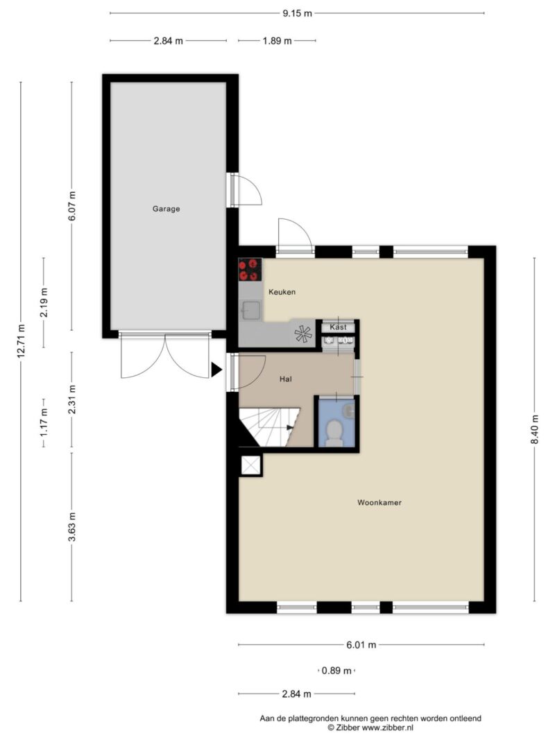
Indeling:
Begane grond:
Entree, garderobe, meterkast (glasvezel aanwezig), toiletruimte met fonteintje, open trap naar eerste verdieping. Vanuit de hal bereikt u de straatgerichte woonkamer met airco, houtkachel en het eetgedeelte met de keuken voorzien van een vaste kast, inductiekookplaat, afzuigkap, vaatwasser, magnetron en een koel/vries combinatie. De tuin is op het noord/westen gelegen en voorzien van meerdere zitjes en biedt toegang tot de garage. Parkeren kunt u met drie auto's op eigen terrein en middels dubbele deuren te bereiken garage.
1e verdieping:
Lichte en ruime overloop met vaste kast, grenzend aan 3 slaapkamers en de badkamer voorzien van een douche, wastafelmeubel, ligbad, toilet, wasmachine aansluiting en raam voor de natuurlijke ventilatie. Open trap naar tweede verdieping
2e verdieping:
Lichte voorzolder met opstelplaats voor de cv ketel (Intergas HR eco uit 2014) en mechanische ventilatie, werkkamer en de 4e slaapkamer met wastafelmeubel.
Deze informatie is door ons met de nodige zorgvuldigheid samengesteld. Onzerzijds wordt echter geen enkele aansprakelijkheid aanvaard voor enige onvolledigheid, onjuistheid of anderszins, dan wel de gevolgen daarvan. Alle opgegeven maten en oppervlakten zijn indicatief.
Kenmerken
Overdracht
- Vraagprijs
- € 489.500,- k.k.
- Status
- beschikbaar
- Aanvaarding
- in overleg
Bouw
- Type
- Woonhuis
- Soort
- eengezinswoning
- Type woonhuis
- halfvrijstaande woning
- Bouwjaar
- 1983
- Onderhoud binnen
- goed
- Onderhoud buiten
- goed
Tuin
- Type
- achtertuin, voortuin
- Hoofd tuin
- achtertuin
- Ligging
- noord, west
- Oppervlakte
- 126 m²
Woonhuis
- Kamers
- 5
- Slaapkamers
- 4
- Verdiepingen
- 3
- Woonopp.
- 124 m²
- Inhoud
- 502 m³
- Perceelopp.
- 288 m²
- Ligging
- aan rustige weg, beschutte ligging, in woonwijk
Energie
- Energie label
- A
- Isolatie
- volledig geïsoleerd
- Verwarming
- c.v.-ketel, elektrische verwarming, houtkachel
Garage
- Type
- aangebouwd steen
- Capaciteit
- 1 auto
Foto's
Kaart
Neem contact met ons op
Bekijk de actuele rentetarieven en de maandlasten voor deze woning
Een hypotheekadviseur vinden?
Klik hier










































