
ten Hag makelaarsgroep BV - locatie Deventer
qriragre#graunt.ay
0570-666999
Wilt u weten of u deze woning kunt betalen?
Kan ik deze woning kopen?
Benieuwd naar de huidige hypotheekrentes?
Bekijk actuele hypotheek rente
Omschrijving
Unieke kans op de Worp!
Op de Worp 67 in Deventer treft u op de hoek een woon-winkelpand met een goede verdeling, royale opslagruimte en 3 parkeerplaatsen voor de deur.
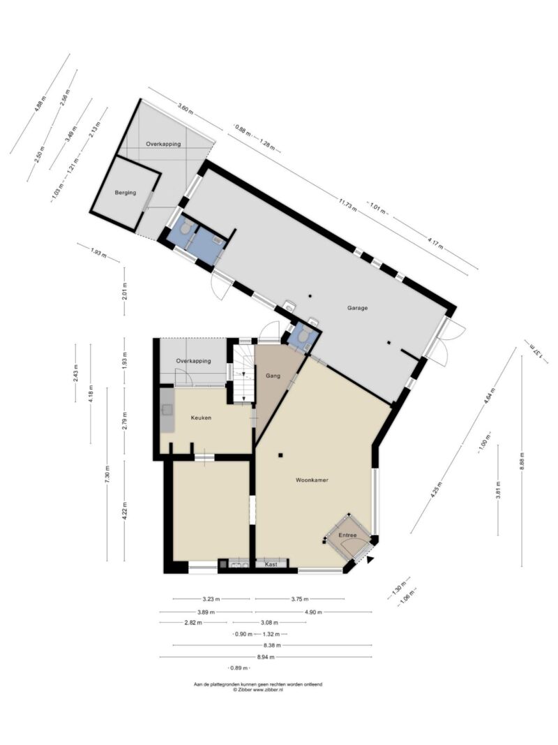
Indeling
Winkelruimte (begane grond):
Representatieve pui, verkoopvloer, kantoor, keuken en royale opslagruimte/werkplaats.
woonruimte (1e verdieping):
Entree via de winkel of via een eigen toegang via de Hovenierstraat. Vanuit de straat kom je in de tuin terecht waar een schuurtje staat t.b.v. opslag en fietsen, vervolgens loopt u via de achterdeur naar de woonruimte op de 1e verdieping die verdeeld is in 3 kamers, toilet en een keuken.
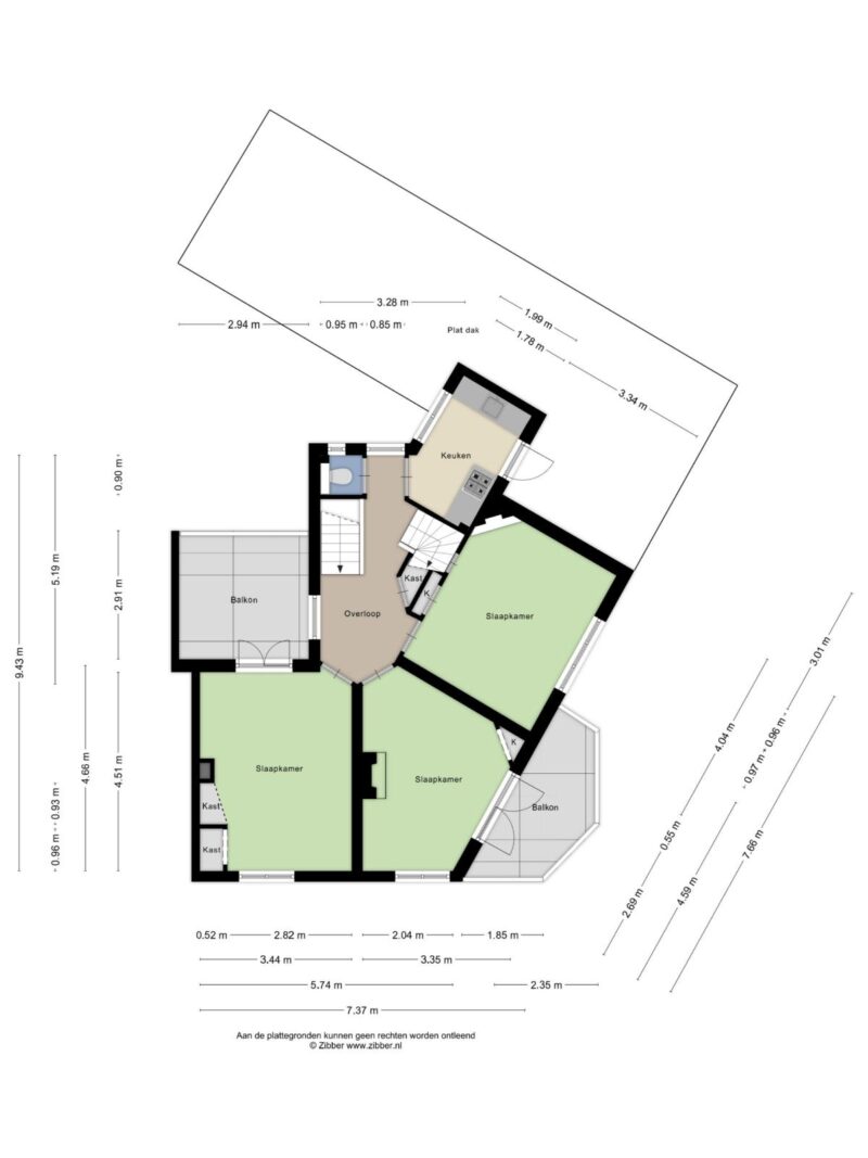
woonruimte (2e verdieping):
Als u vervolgens de trap oploopt naar de 2e verdieping treft u nogmaals een 4-tal kamers aan, waarvan 1 de royale badkamer die in 2023 is gerenoveerd met zowel natuurlijke als mechanische ventilatie.
Locatie:
Het woon-winkelpand aan de Worp 67 ligt op een prettige en goed bereikbare locatie aan de westkant van Deventer. De Worp is een levendige straat met een mix van wonen en werken en bevindt zich op korte afstand van het historische stadscentrum. Via de nabijgelegen Wilhelmina en/of Spoorbrug ben je snel in de binnenstad en zijn ook de uitvalswegen richting de A1 goed bereikbaar. Uiteraard kunt u ook met het de veerpont over!
Bestemmingsplan:
Het object ligt binnen het bestemmingsplan "Chw bestemmingsplan Deventer, stad en dorpen deel B" en kent de bestemmingen maatschappelijk, kantoor, dienstverlening en wonen. Voor de exacte gebruiksmogelijkheden kunt u terecht bij het Omgevingsloket. (Geraadpleegd op 06-01-2026 via de website van de overheid / omgevingswet).
Bijzonderheden:
- Winkel begane grond 73,6 m² met overige inpandige ruimte van maar liefst 45,8m²
- Wonen 1e verdieping 60,7 m².
- Wonen 2e verdieping 38,9 m².
- Perceeloppervlakte: 338 m².
- Bouwjaar: 1920
- 'as is, where is'-clausule zal worden opgenomen in de koopovereenkomst.
- Energielabel F voor de winkelruimte
- Energielabel E voor de woning
- het object mag bestemming technisch ook in zijn geheel bewoond worden. Houd er rekening mee dat de begane grond hier nu niet op is ingericht.
Vraagprijs:
€ 475.000,-- k.k.
Aanvaarding:
In overleg.
Aan deze objectinformatie kunnen geen rechten worden ontleend. Deze informatie kan niet als aanbieding of offerte worden beschouwd. Indien u een aanbieding wenst, kan de makelaar deze na goedkeuring door de opdrachtgever op basis van specifieke gegevens verzorgen
Kenmerken
Overdracht
- Vraagprijs
- € 475.000,- k.k.
- Status
- beschikbaar
- Aanvaarding
- in overleg
Bouw
- Type
- Woonhuis
- Soort
- eengezinswoning
- Type woonhuis
- hoekwoning
- Bouwjaar
- 1920
- Onderhoud binnen
- redelijk
- Onderhoud buiten
- redelijk
Tuin
- Type
- plaats, voortuin
- Hoofd tuin
- plaats
- Oppervlakte
- 6 m²
Woonhuis
- Kamers
- 8
- Slaapkamers
- 6
- Verdiepingen
- 3
- Woonopp.
- 173 m²
- Inhoud
- 795 m³
- Perceelopp.
- 338 m²
- Ligging
- aan park, in woonwijk
Energie
- Energie label
- E
- Isolatie
- gedeeltelijk dubbel glas, geen spouw
- Verwarming
- c.v.-ketel
Garage
- Type
- geen garage
Foto's
Kaart
Neem contact met ons op
Bekijk de actuele rentetarieven en de maandlasten voor deze woning
Een hypotheekadviseur vinden?
Klik hier























































