
Makelaarsland Nederland B.V.
vasb#znxrynnefynaq.ay
(+31) 882 00 20 00
Wilt u weten of u deze woning kunt betalen?
Kan ik deze woning kopen?
Benieuwd naar de huidige hypotheekrentes?
Bekijk actuele hypotheek rente
Omschrijving
Ruime lichte bovenwoning met authentieke details in het geliefde Oude Noorden
In de leukste straat van het Oude Noorden ligt deze ruime karakteristieke bovenwoning met veel potentie aan de Zwart Janstraat. Deze wijk staat bekend om zijn creatieve en levendige karakter met sfeervolle straatjes, gezellige cafés en ambachtelijke winkels. Op loopafstand vind je gezellige horeca. Ook de dagelijkse boodschappen doe je hier om de hoek. Bovendien woon je centraal: met de fiets sta je binnen 10 minuten in het bruisende stadscentrum en station Rotterdam Centraal is eenvoudig te bereiken.
De ligging is ideaal: zowel het centrum van Rotterdam als uitvalswegen richting de A20 en A13 zijn snel bereikbaar. Openbaar vervoer, zoals tram en bus, bevindt zich op loopafstand en zorgt voor een uitstekende verbinding met de rest van de stad.
INDELING
Eerste verdieping
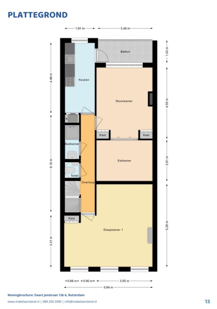
Via de eigen entree kom je via de trap binnen op de eerste verdieping. Aan de achterzijde ligt de keuken met orinele glas en lood ramen en deuren met daaraan een heerlijk ruim balkon op het Zuiden. Een heerlijke rustige plek om een bakje koffie te kunnen drinken in de ochtend, borrelen in de middag of lekker te dineren. Aangrenzend bevinden zich de ruime en lichte kamers met ensuite deuren (facetglas) met hoge plafonds, waar je comfortabel kunt verblijven.
Aan de voorzijde vind je een ruime woonruimte met orginele glas in lood-schuiframen en een prachtig ornamenten plafond. Daarnaast is er een separaat toilet en een separate badkamer.
Via de trap kom je op de tweede verdieping met aan de achterzijde een enorme slaapkamer en aan de voorzijde idem dito. De voorkamer is voorzien van een authentieke zinken dakkapel. Op deze verdieping kan op eenvoudige wijze een extra slaapkamer worden gecreeerd.
Het pand kan op eenvoudige wijze worden voorzien van dubbelglas met behoudt van de originele ramen, waarmee een goede verduurzamingsstap kan worden gemaakt.
Het pand heeft een VVE waarin een gezamelijke opstalverzekering wordt gevoerd en onderhoud in goed overleg wordt gepleegd indien nodig.
Omdat het pand in het verleden altijd verhuurd is geweest zit er aan het pand ook een kamerverhuurvergunning voor 4 onzelfstandige woonruimten vast.
Bijzonderheden
– Grote woning met veel potentie
– Drie slaapkamers
– Balkon op aan de achterzijde aan de zuidkant
– Gelegen in een geliefde en levendige wijk
DETAILS
– Bouwjaar 1894
– Eigen grond
– Woonoppervlakte circa 127 m²
– Inhoud circa 444 m³
– Verwarming en warm water middels C.V.-ketel
– Energielabel D
– Oplevering in overleg
– Ouderdomsclausule van toepassing
– As is, where is
Aan deze aanbieding kunnen geen rechten worden ontleend.
Kenmerken
Overdracht
- Vraagprijs
- € 400.000,- k.k.
- Status
- beschikbaar
- Aanvaarding
- in overleg
Bouw
- Type
- Appartement
- Soort
- bovenwoning
- Bouwjaar
- 1894
- Onderhoud binnen
- slecht
- Onderhoud buiten
- matig
Appartement
- Kamers
- 5
- Slaapkamers
- 4
- Verdiepingen
- 2
- Woonopp.
- 127 m²
- Inhoud
- 444 m³
- Ligging
- aan drukke weg, in centrum, in woonwijk
Energie
- Energie label
- D
- Isolatie
- gedeeltelijk dubbel glas
- Verwarming
- c.v.-ketel
Garage
- Type
- geen garage
Foto's
Neem contact met ons op
Bekijk de actuele rentetarieven en de maandlasten voor deze woning
Een hypotheekadviseur vinden?
Klik hier





































